De Haan Makelaars gebruikt cookies om de website naar behoren te laten werken, om functies voor social media te bieden en om onze website te analyseren. Op onze website kun je ons Cookiebeleid en Privacyverklaring vinden.

Campherbeeklaan 34, Zwolle

Vraagprijs   € 1.195.000 k.k.  

  • Omschrijving

    Sfeervolle jaren ’30 villa op toplocatie in Berkum!

    Aan de Campherbeeklaan, in de groene en geliefde wijk Berkum, staat deze karakteristieke en uitstekend onderhouden jaren ’30 villa op een royaal perceel van maar liefst 658 m². Een woning, waar de sfeer en charme van de jaren ’30 op elegante wijze samengaan met hedendaags wooncomfort. Authentieke details, royale leefruimtes en een verzorgde, groene tuin zorgen voor een gevoel van rust, ruimte en privacy.

    Voor de uitgebreide informatie, kijk op: campherbeeklaan34.nl

    Indeling begane grond
    Via de sierpoort en de verzorgde voortuin bereik je deze karakteristieke jaren ’30 villa met fraaie overstekken en authentieke details. Bij binnenkomst word je direct verwelkomd door de warme sfeer van de woning, versterkt door de glas-in-lood details en de prettige lichtinval. Vanuit de hal met toilet is er toegang tot de royale woonkamer, waar ruimte en comfort samenkomen. Aansluitend bevindt zich de sfeervolle keuken, voorzien van diverse inbouwapparatuur, met toegang tot een praktische voorraadkelder en de mogelijkheid voor elektrische vloerverwarming.

    De woning is aan de achterzijde uitgebouwd met een serre en een royale slaapkamer met aansluitend een moderne badkamer (2024), voorzien van een douche, ligbad, wastafelmeubel en toilet. De badkamer is tevens ook voorzien van vloerverwarming. Onder de slaapkamer bevindt zich een souterrain, een veelzijdige ruimte die zich uitstekend leent voor gebruik als speelkamer, hobbyruimte of extra bergruimte en waar tevens de wasmachineaansluitingen zijn gesitueerd. In de hal is ook vloerverwarming aanwezig. Deze fraaie uitbreiding zorgt voor een prettige verbinding tussen binnen en buiten en biedt extra leefruimte beneden.

    1e verdieping
    Via een fraaie bordestrap wordt de eerste verdieping bereikt. Hier bevinden zich vier royale slaapkamers, waarvan één is voorzien van een wastafel en een andere slaapkamer toegang biedt tot een dakterras. Daarnaast beschikt deze verdieping over een separaat toilet en een tweede badkamer, uitgerust met een wastafelmeubel en een doucheruimte. Ook op deze verdieping komt de kenmerkende sfeer van de woning terug, dankzij de prettige maatvoering en de karaktervolle uitstraling.

    2e verdieping
    De tweede verdieping is bereikbaar via een vaste trap en bestaat uit een zeer royale zolderverdieping, eveneens is hier een wastafel aanwezig. Deze ruimte biedt volop mogelijkheden voor het creëren van extra slaapkamers, een werkruimte of een hobbyruimte, afhankelijk van de woonwensen. Dankzij de omvang en hoogte is dit een volwaardige verdieping met veel potentie.

    Buitenleven
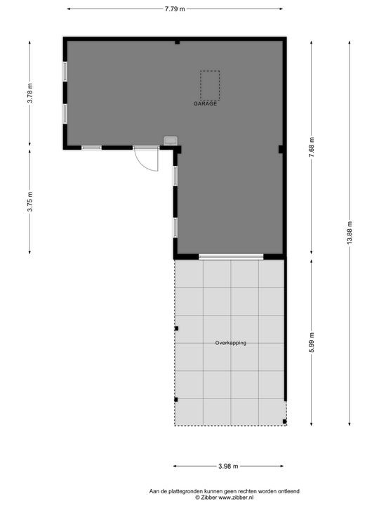
    De met veel zorg en aandacht aangelegde tuin vormt een sfeervolle en groene oase met volop privacy. Door de gunstige ligging op het westen en de aanwezigheid van meerdere terrassen is er de hele dag door een fijne plek om van zon en buitenleven te genieten. Het elektrische zonnescherm zorgt daarbij voor extra comfort op warme dagen. Daarnaast beschikt het perceel over een ruime garage met vliering, smeerput en een carport, wat zorgt voor voldoende bergruimte en parkeergelegenheid. Ideaal!

    Locatie
    De Campherbeeklaan is gelegen in de geliefde wijk Berkum, een groene en rustige woonomgeving met een dorps karakter. De wijk is bijzonder kindvriendelijk, met autoluwe straten, veel speelruimte en diverse scholen in de directe omgeving. Voorzieningen zoals een supermarkt, sportverenigingen en een gezondheidscentrum bevinden zich op korte afstand. Het Vechtdal ligt nabij en is ideaal voor wandel- en fietstochten in het groen. De levendige binnenstad van Zwolle is binnen circa tien minuten per fiets bereikbaar en ook de uitvalswegen richting de A28 en N35 zijn snel en eenvoudig te bereiken.

    Wetenswaardigheden
    Bouwjaar : 1930
    Perceel : 658 m²
    Inhoud : 849 m³
    Gebruiksoppervlakte : 229 m²
    Externe bergruimte : 59 m²
    Verwarming : Via CV- ketel en gedeeltelijk vloerverwarming
    Warm water : Via CV- ketel (Remeha Calenta 2016)
    Isolatie : Dak, muur, gedeeltelijke vloerisolatie en gedeeltelijk dubbel glas
    Energielabel : C
    Aanvaarding : In overleg
    Overig : Waterontharder aanwezig
    Zonnepanelen : 27 stuks

  • Locatie

    [ { "address": "Campherbeeklaan 34", "zipCode": "8024 BX", "city": "Zwolle", "lat": 52.5250343, "lng": 6.1339036, "heading": 0, "pitch": 0 } ]
    [{"featureType":"administrative","elementType":"all","stylers":[{"visibility":"off"}]},{"featureType":"landscape","elementType":"all","stylers":[{"visibility":"simplified"},{"hue":"#0066ff"},{"saturation":74},{"lightness":100}]},{"featureType":"poi","elementType":"all","stylers":[{"visibility":"simplified"}]},{"featureType":"road","elementType":"all","stylers":[{"visibility":"simplified"}]},{"featureType":"road.highway","elementType":"all","stylers":[{"visibility":"off"},{"weight":0.6},{"saturation":-85},{"lightness":61}]},{"featureType":"road.highway","elementType":"geometry","stylers":[{"visibility":"on"}]},{"featureType":"road.arterial","elementType":"all","stylers":[{"visibility":"off"}]},{"featureType":"road.local","elementType":"all","stylers":[{"visibility":"on"}]},{"featureType":"transit","elementType":"all","stylers":[{"visibility":"simplified"}]},{"featureType":"water","elementType":"all","stylers":[{"visibility":"simplified"},{"color":"#5f94ff"},{"lightness":26},{"gamma":5.86}]}]
  • Kenmerken

    Prijs
    € 1.195.000 k.k.
    Inrichting
    Gestoffeerd
    Wijk
    Berkum
    Locatie
    In woonwijk
    Postcode
    8024 BX Zwolle
    Woningtype
    Vrijstaande woning
    Bouwjaar
    1930
    Soort bouw
    Bestaande bouw
    Tuin
    Ja, Achtertuin, West, 1500×1750cm
    Parkeren
    Garage, CarportVrijstaand steen
    Kamers
    8
    Slaapkamers
    5
    Badkamers
    2
    Woonoppervlakte
    229m²
    Perceeloppervlakte
    658m²
    Inhoud
    849m³
    Oplevering
    In overleg
  • Documenten

  • Plattegronden

  • Reageer

    Uw bericht is naar ons verzonden. Wij nemen zo snel mogelijk contact met ons op.

    Sorry, we kunnen helaas niet met zekerheid vaststellen of u een mens of een geautomatiseerde bot/spammer bent. Hierdoor kunnen we het formulier dat u heeft ingevuld niet verzenden. Probeer het opnieuw of neem direct contact op met de makelaar via e-mail.

    Er is iets mis gegaan met het versturen van het formulier.
    Controleer of u alle velden (goed) heeft ingevoerd en probeer het nog een keer.

    recaptcha
    reCAPTCHA
    PrivacyTerms
  • van

    Goedenavond 👋

    Benieuwd naar de waarde van uw huis?

    U weet het al binnen 1 minuut. Laten we beginnen!

    Wat is de reden van uw aanvraag?
    Ik wil graag...

    Er zijn meerdere antwoorden mogelijk.

    Wanneer wilt u verhuizen?

    We zijn er bijna 🎉

    Om het rapport op te maken hebben we een aantal gegevens nodig

    recaptcha
    reCAPTCHA
    PrivacyTerms

    Uw woningwaarde wordt berekend... 🚀

    loading

    Bedankt %name%! De woningwaarde van %address% is berekend 🥳

    Check uw mail voor het rapport!

    success
    Wat is mijn huis waard?