De Haan Makelaars gebruikt cookies om de website naar behoren te laten werken, om functies voor social media te bieden en om onze website te analyseren. Op onze website kun je ons Cookiebeleid en Privacyverklaring vinden.

van Riebeeckstraat 4, Vaassen

Vraagprijs   € 479.000 k.k.  

  • Omschrijving

    Karakteristieke tweekapper met garage en carport gelegen op een royaal perceel!

    Op een fijne locatie, op korte afstand van het gezellige centrum van Vaassen, staat deze karakteristieke helft van een dubbele woning met vrijstaande garage en carport. Gelegen op een royaal perceel van bijna 500 m² biedt het volop ruimte, privacy en comfort!

    Voor de uitgebreide informatie, kijk op: vanriebeeckstraat4.nl

    Deze sfeervolle woning is gebouwd in 1920 en ademt nog altijd de charme van toen, gecombineerd met het wooncomfort van nu. De woning is voorzien van dak- en glasisolatie en door de huidige bewoners met zorg onderhouden en gemoderniseerd. Zij hebben volop genoten van de diepe, zonnige tuin en de centrale ligging op loopafstand van winkels, scholen en andere voorzieningen.

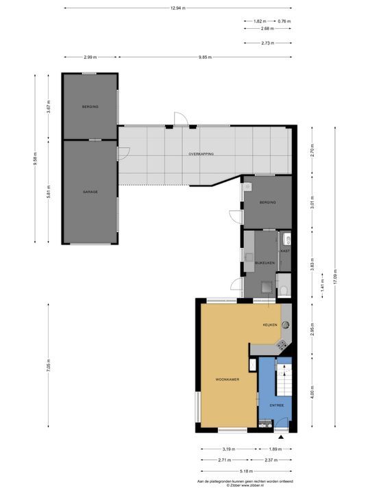
    Indeling begane grond
    Via de entree komt u in de hal met meterkast en toegang tot de kelder. De woonkamer is sfeervol en licht, met als blikvanger de gezellige open haard. De open keuken is uitgevoerd in een moderne hoekopstelling met natuurstenen werkblad en diverse inbouwapparatuur, waaronder een koelkast, combimagnetron, 4-pits gaskookplaat en afzuigkap.

    Aansluitend bevindt zich de royale bijkeuken met aanrechtblok en vaatwasser en aansluitingen voor wasapparatuur. Tevens vindt u hier het toilet en toegang tot een praktische berging.

    Eerste verdieping
    De overloop geeft toegang tot drie slaapkamers en een complete badkamer voorzien van douche, vaste wastafel en toilet.

    Tweede verdieping
    Via een vaste trap bereikt u de zolderverdieping. Deze biedt veel bergruimte en een extra (slaap)kamer – ideaal als hobbyruimte, werkplek of logeerkamer.

    Buitenleven
    De verzorgde tuin is een van de grote pluspunten van deze woning. De royale oprit biedt parkeergelegenheid op eigen terrein. De diepe achtertuin biedt veel privacy en beschikt over een overdekt terras, waar u heerlijk kunt genieten van het buitenleven.

    Het perceel beschikt tevens over diverse praktische bijgebouwen zoals een vrijstaande garage (ca. 10 x 3 meter), berging, overkapping/carport, welke geschikt is voor bijvoorbeeld een caravan en een overdekt terras.

    Kortom. een prachtige, karakteristieke woning met garage, gelegen op een royaal perceel, op een uitstekende locatie nabij het centrum van Vaassen. Een unieke kans voor wie ruimte, charme en comfort weet te waarderen!

    Wetenswaardigheden
    Bouwjaar woning : 1920
    Perceel : 490 m²
    Inhoud : ca. 375 m³
    Gebruiksoppervlakte : ca. 80 m²
    Inpandige ruimte : ca. 18 m²
    Bijgebouw : ca. 29 m²
    Verwarming : via cv- ketel (2026)
    Airco : begane grond en verdieping
    Warm water : via cv- ketel
    Isolatie : dak- en glasisolatie

  • Locatie

    [ { "address": "van Riebeeckstraat 4", "zipCode": "8172 GV", "city": "Vaassen", "lat": 52.2824876, "lng": 5.9624337, "heading": 0, "pitch": 0 } ]
    [{"featureType":"administrative","elementType":"all","stylers":[{"visibility":"off"}]},{"featureType":"landscape","elementType":"all","stylers":[{"visibility":"simplified"},{"hue":"#0066ff"},{"saturation":74},{"lightness":100}]},{"featureType":"poi","elementType":"all","stylers":[{"visibility":"simplified"}]},{"featureType":"road","elementType":"all","stylers":[{"visibility":"simplified"}]},{"featureType":"road.highway","elementType":"all","stylers":[{"visibility":"off"},{"weight":0.6},{"saturation":-85},{"lightness":61}]},{"featureType":"road.highway","elementType":"geometry","stylers":[{"visibility":"on"}]},{"featureType":"road.arterial","elementType":"all","stylers":[{"visibility":"off"}]},{"featureType":"road.local","elementType":"all","stylers":[{"visibility":"on"}]},{"featureType":"transit","elementType":"all","stylers":[{"visibility":"simplified"}]},{"featureType":"water","elementType":"all","stylers":[{"visibility":"simplified"},{"color":"#5f94ff"},{"lightness":26},{"gamma":5.86}]}]
  • Kenmerken

    Prijs
    € 479.000 k.k.
    Inrichting
    Gestoffeerd
    Wijk
    Vaassen-West
    Locatie
    In centrum, In woonwijk
    Postcode
    8172 GV Vaassen
    Woningtype
    2-onder-1-kapwoning
    Bouwjaar
    1920
    Soort bouw
    Bestaande bouw
    Tuin
    Ja, Achtertuin, Noord, 1300×2000cm
    Parkeren
    Garage, Vrijstaand steen, 30m²
    Kamers
    5
    Slaapkamers
    4
    Badkamers
    1
    Woonoppervlakte
    80m²
    Perceeloppervlakte
    490m²
    Inhoud
    348m³
    Oplevering
    In overleg
  • Documenten

  • Plattegronden

  • Reageer

    Uw bericht is naar ons verzonden. Wij nemen zo snel mogelijk contact met ons op.

    Sorry, we kunnen helaas niet met zekerheid vaststellen of u een mens of een geautomatiseerde bot/spammer bent. Hierdoor kunnen we het formulier dat u heeft ingevuld niet verzenden. Probeer het opnieuw of neem direct contact op met de makelaar via e-mail.

    Er is iets mis gegaan met het versturen van het formulier.
    Controleer of u alle velden (goed) heeft ingevoerd en probeer het nog een keer.

    recaptcha
    reCAPTCHA
    PrivacyTerms
  • van

    Goedemiddag 👋

    Benieuwd naar de waarde van uw huis?

    U weet het al binnen 1 minuut. Laten we beginnen!

    Wat is de reden van uw aanvraag?
    Ik wil graag...

    Er zijn meerdere antwoorden mogelijk.

    Wanneer wilt u verhuizen?

    We zijn er bijna 🎉

    Om het rapport op te maken hebben we een aantal gegevens nodig

    recaptcha
    reCAPTCHA
    PrivacyTerms

    Uw woningwaarde wordt berekend... 🚀

    loading

    Bedankt %name%! De woningwaarde van %address% is berekend 🥳

    Check uw mail voor het rapport!

    success
    Wat is mijn huis waard?