De Haan Makelaars gebruikt cookies om de website naar behoren te laten werken, om functies voor social media te bieden en om onze website te analyseren. Op onze website kun je ons Cookiebeleid en Privacyverklaring vinden.

Eperweg 48, Oene

Vraagprijs   € 750.000 k.k.  

  • Omschrijving

    Karakter, comfort en natuur. Hier kunt u eindeloos genieten van het buitenleven!

    Stelt u zich eens voor: wakker worden met uitzicht over de weilanden, genieten van lange zomeravonden onder uw eigen veranda en wonen in een charmante boerderij waar karakter en comfort hand in hand gaan. Op een prachtige plek in het buitengebied van de gemeente Epe, nabij het levendige dorp Oene, staat deze vrijstaande woonboerderij met aangebouwd bakhuis, royale houten schuur en diverse bijgebouwen. Gelegen op een riant perceel van maar liefst 1.889 m² en omgeven door rust, ruimte en natuur, biedt deze woning alles voor wie droomt van het ultieme buitenleven.

    De boerderij werd in 1925 gebouwd en is na 2016 met veel zorg gemoderniseerd. Daarbij zijn de authentieke details behouden gebleven, waardoor de woning zijn karakter en warme sfeer heeft behouden, maar tegelijkertijd helemaal klaar is voor comfortabel wonen met alle voorzieningen op de begane grond.

    Meer informatie en foto’s vindt u op: www.eperweg48.nl

    Indeling:
    Bij binnenkomst in de ruime hal met toilet ervaart u direct de charme van deze boerderij. De woonkamer aan de voorzijde is licht en sfeervol, met ramen die uitkijken over het erf en een aansluiting voor een houtkachel. Aan de achterzijde van de woning bevindt zich een slaapkamer met daarnaast een moderne badkamer voorzien van een inloopdouche, wastafel en aansluitingen voor de wasapparatuur.

    Het aangebouwde bakhuis vormt het hart van de woning. Hier is een prachtige woonkeuken gerealiseerd met robuuste houten balken, een tweede houtkachelaansluiting en een moderne keuken met diverse inbouwapparatuur. Dit is een plek waar koken, tafelen en gezellig samenzijn samenkomen.
    Op de verdieping treft u een ruime overloop met handige knieschotten en twee grote slaapkamers, beide voorzien van een dakkapel. De kamers beschikken over praktische knieschotten en zijn daarmee niet alleen ruim, maar ook functioneel ingedeeld.

    Bijgebouwen en erf:
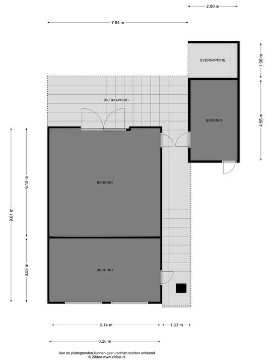
    Het erf rond de woning is royaal en overzichtelijk ingericht. Achter in de tuin staat een groot houten bijgebouw van circa 60 m², momenteel ingedeeld als berging en garage. Dankzij de veranda aan de achterzijde en de overkapping aan de zijkant is dit niet alleen praktisch, maar ook een heerlijke plek om te ontspannen met uitzicht over de tuin en de omliggende landerijen. Daarnaast zijn er een aparte fietsenberging, een dierenverblijf en een houtopslag aanwezig. Aan de voorzijde beschikt het perceel over een dubbele inrit en een ruim binnenplein dat veel parkeergelegenheid biedt.

    Het buitenleven:
    Rondom de woning geniet u van volop privacy, natuur en vrijheid. De achtertuin is groen en natuurlijk ingericht, met onder andere een vuurplaats voor gezellige avonden buiten. De veranda’s zorgen ervoor dat u vrijwel het hele jaar door buiten kunt zitten, beschut en met vrij uitzicht over de weilanden. Dit is wonen zoals wonen bedoeld is.

    Locatie:
    De woning ligt net buiten het dorp Oene, een levendige en gastvrije gemeenschap met voorzieningen zoals een supermarkt, slager en basisscholen. Voor uitgebreid winkelen, horeca en middelbare scholen bent u in slechts tien minuten in Epe, dat beschikt over een gezellig centrum en een ruim aanbod aan faciliteiten. Daarbij liggen de bossen, heidevelden en landerijen van de Veluwe letterlijk om de hoek.

    Samengevat:
    Eperweg 48 in Oene biedt de unieke kans om landelijk te wonen in een karaktervolle, instapklare woonboerderij met volop ruimte, privacy en mogelijkheden. Met zijn royale perceel, sfeervolle woonruimtes, prachtige bijgebouwen en ligging in een groene en levendige omgeving is dit een plek waar u het buitenleven in zijn volle glorie ervaart.

    Wetenswaardigheden
    Bouwjaar : 1925/2016
    Perceel : 1889 m²
    Inhoud : 426 m³
    Gebruiksoppervlakte : 115 m²
    Externe bergruimte : 83 m²
    Verwarming : Atag HR, bouwjaar 2025
    Warm water : Via CV- ketel
    Vloerverwarming : Keuken
    Isolatie : Gedeeltelijk muur- ,glas, dak- en vloerisolatie
    Energielabel : E
    Aanvaarding : In overleg

  • Locatie

    [ { "address": "Eperweg 48", "zipCode": "8167 LJ", "city": "Oene", "lat": 52.3474873, "lng": 6.0371473, "heading": 0, "pitch": 0 } ]
    [{"featureType":"administrative","elementType":"all","stylers":[{"visibility":"off"}]},{"featureType":"landscape","elementType":"all","stylers":[{"visibility":"simplified"},{"hue":"#0066ff"},{"saturation":74},{"lightness":100}]},{"featureType":"poi","elementType":"all","stylers":[{"visibility":"simplified"}]},{"featureType":"road","elementType":"all","stylers":[{"visibility":"simplified"}]},{"featureType":"road.highway","elementType":"all","stylers":[{"visibility":"off"},{"weight":0.6},{"saturation":-85},{"lightness":61}]},{"featureType":"road.highway","elementType":"geometry","stylers":[{"visibility":"on"}]},{"featureType":"road.arterial","elementType":"all","stylers":[{"visibility":"off"}]},{"featureType":"road.local","elementType":"all","stylers":[{"visibility":"on"}]},{"featureType":"transit","elementType":"all","stylers":[{"visibility":"simplified"}]},{"featureType":"water","elementType":"all","stylers":[{"visibility":"simplified"},{"color":"#5f94ff"},{"lightness":26},{"gamma":5.86}]}]
  • Kenmerken

    Prijs
    € 750.000 k.k.
    Inrichting
    Gestoffeerd
    Wijk
    Verspreide huizen Oene
    Locatie
    Buiten bebouwde kom, Landelijk gelegen
    Postcode
    8167 LJ Oene
    Woningtype
    Vrijstaande woning
    Bouwjaar
    1925
    Soort bouw
    Bestaande bouw
    Tuin
    Ja, Achtertuin, Noord, 2300×5000cm
    Parkeren
    Garage, Vrijstaand hout, 65m²
    Kamers
    4
    Slaapkamers
    3
    Badkamers
    1
    Woonoppervlakte
    115m²
    Perceeloppervlakte
    1.889m²
    Inhoud
    426m³
    Oplevering
    In overleg
  • Documenten

  • Plattegronden

  • Reageer

    Uw bericht is naar ons verzonden. Wij nemen zo snel mogelijk contact met ons op.

    Sorry, we kunnen helaas niet met zekerheid vaststellen of u een mens of een geautomatiseerde bot/spammer bent. Hierdoor kunnen we het formulier dat u heeft ingevuld niet verzenden. Probeer het opnieuw of neem direct contact op met de makelaar via e-mail.

    Er is iets mis gegaan met het versturen van het formulier.
    Controleer of u alle velden (goed) heeft ingevoerd en probeer het nog een keer.

    recaptcha
    reCAPTCHA
    PrivacyTerms
  • van

    Goedenavond 👋

    Benieuwd naar de waarde van uw huis?

    U weet het al binnen 1 minuut. Laten we beginnen!

    Wat is de reden van uw aanvraag?
    Ik wil graag...

    Er zijn meerdere antwoorden mogelijk.

    Wanneer wilt u verhuizen?

    We zijn er bijna 🎉

    Om het rapport op te maken hebben we een aantal gegevens nodig

    recaptcha
    reCAPTCHA
    PrivacyTerms

    Uw woningwaarde wordt berekend... 🚀

    loading

    Bedankt %name%! De woningwaarde van %address% is berekend 🥳

    Check uw mail voor het rapport!

    success
    Wat is mijn huis waard?