De Haan Makelaars gebruikt cookies om de website naar behoren te laten werken, om functies voor social media te bieden en om onze website te analyseren. Op onze website kun je ons Cookiebeleid en Privacyverklaring vinden.

Fuchsiastraat 2, Heerde

Vraagprijs   € 625.000 k.k.  

  • Omschrijving

    Unieke kans! Royale vrijstaande woning met zonnige tuin, veranda én vier garages!

    Welkom aan de Fuchsiastraat 2 in Heerde! Een verrassend ruime en goed onderhouden vrijstaande woning met maar liefst 186 m² gebruiksoppervlak en vijf slaapkamers.

    Deze woning combineert ruimte, comfort en een praktische indeling met een fijne ligging in een rustige, groene woonwijk op loopafstand van voorzieningen. De zonnige achtertuin met veranda en het grote bijgebouw met vier garages en extra schuur maken dit een ideale gezinswoning met volop mogelijkheden voor hobby, opslag of werken aan huis.

    Indeling begane grond
    Ruime hal met trapopgang, garderobe en toilet. De sfeervolle L-vormige woonkamer is heerlijk licht dankzij de grote ramen. De massief eiken vloer en houtkachel zorgen voor een warme, gezellige uitstraling. De halfopen keuken beschikt over diverse inbouwapparatuur en veel kastruimte. Aansluitend bevindt zich de praktische bijkeuken met aansluitingen voor wasapparatuur en toegang tot de achtertuin en veranda.

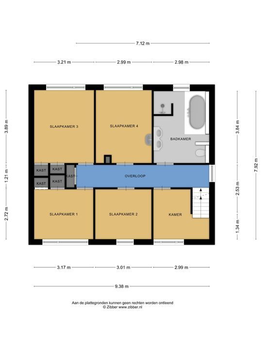
    Eerste verdieping
    Vier ruime slaapkamers, waarvan de hoofdslaapkamer is voorzien van vaste kasten. De moderne royale badkamer is compleet uitgevoerd met ligbad, inloopdouche, dubbele wastafel en tweede toilet.

    Tweede verdieping
    Via vaste trap bereikbare ruime zolderverdieping met mogelijkheid voor een extra slaap- of hobbykamer, veel bergruimte en de cv-opstelling.

    Buitenleven en bijgebouwen
    De fraai aangelegde, zonnige achtertuin (zuidwest) beschikt over een royale veranda. Een heerlijke plek om vrijwel het hele jaar buiten te zitten! Aan de noordwestzijde staat een groot bijgebouw met vier garages (ca. 11 × 7 m), waarvan in februari 2023 nieuwe dakbedekking is aangebracht. Ideaal voor hobbyisten, ondernemers of het stallen van meerdere voertuigen.

    Daarnaast bevindt zich aan de westzijde van de tuin een degelijke houten schuur voor fietsen en tuingereedschap.
    Deze woning is bijzonder geschikt voor gezinnen, zelfstandigen of hobbyisten die veel ruimte zoeken en rustig willen wonen met alle voorzieningen binnen handbereik! Wij nodigen u dan ook graag uit een bezichtiging. Van harte welkom aan de Fuchsiastraat 2 te Heerde!

    Wetenswaardigheden
    Bouwjaar : 1978
    Inhoud : 689 m³
    Woonoppervlakte : 186 m²
    Externe bergruimte : 93 m²
    Verwarming : Intergas Hr. Combi
    Warm water : via Combiketel
    Vloerverwarming : Badkamer
    Isolatie : Dak-, muur- en gedeeltelijk glasisolatie
    Zonnepanelen : 12
    Energielabel : C
    Aanvaarding : In overleg

  • Locatie

    [ { "address": "Fuchsiastraat 2", "zipCode": "8181 TS", "city": "Heerde", "lat": 52.3892097, "lng": 6.0476274, "heading": 0, "pitch": 0 } ]
    [{"featureType":"administrative","elementType":"all","stylers":[{"visibility":"off"}]},{"featureType":"landscape","elementType":"all","stylers":[{"visibility":"simplified"},{"hue":"#0066ff"},{"saturation":74},{"lightness":100}]},{"featureType":"poi","elementType":"all","stylers":[{"visibility":"simplified"}]},{"featureType":"road","elementType":"all","stylers":[{"visibility":"simplified"}]},{"featureType":"road.highway","elementType":"all","stylers":[{"visibility":"off"},{"weight":0.6},{"saturation":-85},{"lightness":61}]},{"featureType":"road.highway","elementType":"geometry","stylers":[{"visibility":"on"}]},{"featureType":"road.arterial","elementType":"all","stylers":[{"visibility":"off"}]},{"featureType":"road.local","elementType":"all","stylers":[{"visibility":"on"}]},{"featureType":"transit","elementType":"all","stylers":[{"visibility":"simplified"}]},{"featureType":"water","elementType":"all","stylers":[{"visibility":"simplified"},{"color":"#5f94ff"},{"lightness":26},{"gamma":5.86}]}]
  • Kenmerken

    Prijs
    € 625.000 k.k.
    Inrichting
    Gestoffeerd
    Wijk
    Heerde
    Locatie
    Aan rustige weg, In centrum
    Postcode
    8181 TS Heerde
    Woningtype
    Vrijstaande woning
    Bouwjaar
    1978
    Soort bouw
    Bestaande bouw
    Tuin
    Ja, Tuin rondom
    Parkeren
    Garage, Vrijstaand houtVrijstaand steen
    Kamers
    7
    Slaapkamers
    5
    Badkamers
    1
    Woonoppervlakte
    186m²
    Perceeloppervlakte
    642m²
    Inhoud
    689m³
    Oplevering
    In overleg
  • Documenten

  • Plattegronden

  • Reageer

    Uw bericht is naar ons verzonden. Wij nemen zo snel mogelijk contact met ons op.

    Sorry, we kunnen helaas niet met zekerheid vaststellen of u een mens of een geautomatiseerde bot/spammer bent. Hierdoor kunnen we het formulier dat u heeft ingevuld niet verzenden. Probeer het opnieuw of neem direct contact op met de makelaar via e-mail.

    Er is iets mis gegaan met het versturen van het formulier.
    Controleer of u alle velden (goed) heeft ingevoerd en probeer het nog een keer.

    recaptcha
    reCAPTCHA
    PrivacyTerms
  • van

    Goedenavond 👋

    Benieuwd naar de waarde van uw huis?

    U weet het al binnen 1 minuut. Laten we beginnen!

    Wat is de reden van uw aanvraag?
    Ik wil graag...

    Er zijn meerdere antwoorden mogelijk.

    Wanneer wilt u verhuizen?

    We zijn er bijna 🎉

    Om het rapport op te maken hebben we een aantal gegevens nodig

    recaptcha
    reCAPTCHA
    PrivacyTerms

    Uw woningwaarde wordt berekend... 🚀

    loading

    Bedankt %name%! De woningwaarde van %address% is berekend 🥳

    Check uw mail voor het rapport!

    success
    Wat is mijn huis waard?