De Haan Makelaars gebruikt cookies om de website naar behoren te laten werken, om functies voor social media te bieden en om onze website te analyseren. Op onze website kun je ons Cookiebeleid en Privacyverklaring vinden.

Koningin Wilhelminalaan 1, Hattem

Vraagprijs   € 1.495.000 k.k.  

  • Omschrijving

    Moderne villa in het groen, waar rust, ruimte en perfectie samenkomen! Van harte welkom aan de Koningin Wilhelminalaan 1 te Hattem!

    Ontdek de ultieme combinatie van rust, natuur en uitstekende bereikbaarheid aan de Koningin Wilhelminalaan 1 in Hattem. Deze prachtige vrijstaande villa, gebouwd onder moderne architectuur in 1976 en de afgelopen jaren volledig gemoderniseerd, ligt op een royaal perceel van maar liefst 4.650 m² midden in het groen. Met een inpandige dubbele garage, vrijstaande houten schuur en een fraai aangelegde tuin met volledige privacy, biedt deze woning een unieke woonbeleving.

    Voor de uitgebreide informatie, kijk op: koninginwilhelminalaan1.nl

    Via de imposante oprijlaan bereikt u de villa, omgeven door een schitterende tuin met veranda en meerdere zonneterrassen. Binnen treft u een strak en modern interieur: een pvc-vloer door de gehele woning, nieuw gestuukte wanden en plafonds, en een moderne keuken en badkamer. De tuin is eveneens volledig opnieuw aangelegd en voorzien van een beregeningsinstallatie. Kortom: een strakke, eigentijdse villa met veel ruimte, comfort en een toplocatie in het bosrijke Hattem.

    Indeling begane grond
    De entree met royale hal, toilet en trapopgang vormt het hart van het huis. Vanuit hier heeft u toegang tot het souterrain en de verdieping. De ruime en lichte living beschikt over grote raampartijen en openslaande deuren naar het terras met overdekte veranda. De open keuken heeft een moderne opstelling met kookeiland en diverse inbouwapparatuur. Verder vindt u een tv-/werkkamer met pelletkachel, een bijkeuken met wasmachineaansluiting en een zij-ingang. In de linker vleugel bevindt zich de master bedroom met aangrenzende moderne badkamer, kledingkamer, extra werkkamer en een tweede bijkeuken.

    Eerste verdieping
    De verdieping beschikt over een ruime overloop met vaste kastenwand, vier royale slaapkamers, allemaal voorzien van inbouwkasten en een gezamenlijk balkon met prachtig uitzicht over de tuin. De tweede badkamer is volledig betegeld en uitgerust met wastafel, toilet en inloopdouche.

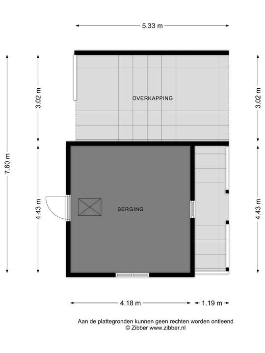
    Het souterrain
    Hier vindt u een provisieruimte, berging, stookruimte en een ruime dubbele garage. Ideaal!

    Buitenleven
    De tuin rondom is recent volledig opnieuw aangelegd en biedt diverse terrassen, een veranda, een fraaie oprijlaan en een vrijstaande houten schuur (toegankelijk via de tuin of via de achteringang aan de Oranje Nassaulaan). De tuin is volledig omheind en biedt optimale privacy.

    Locatie
    Hattem is een charmante Hanzestad met een monumentale sfeer en een prachtige groene omgeving. Hier komen cultuur, historie en natuur samen. De stad biedt volop voorzieningen, sportclubs (waaronder een golfclub) en een levendige gemeenschap. Dankzij de fietsbrug over de IJssel bent u in enkele minuten in het centrum van Zwolle of bij het station. De A50 en A28 zorgen bovendien voor een uitstekende bereikbaarheid.
    Heeft u altijd al willen wonen in een van de meest geliefde villawijken van Hattem?

    Wij laten u dan ook graag deze bijzondere villa zien!

    Wetenswaardigheden
    Bouwjaar : 1976
    Perceel : 4.650 m²
    Inhoud : 1.078 m³
    Inpandige ruimte : 60 m²
    Gebruiksoppervlakte : 231 m²
    Externe bergruimte : 31m²
    Verwarming : Remeha HR 2024 en pellet kachel
    Warm water : Via combiketel en boiler in keuken
    Isolatie : Dak, muur- en glasisolatie
    Energielabel : C
    Aanvaarding : In overleg
    Overig : Beregeningsinstallatie via grondwaterpomp

  • Locatie

    [ { "address": "Koningin Wilhelminalaan 1", "zipCode": "8051 PA", "city": "Hattem", "lat": 52.4567326, "lng": 6.0560811, "heading": 0, "pitch": 0 } ]
    [{"featureType":"administrative","elementType":"all","stylers":[{"visibility":"off"}]},{"featureType":"landscape","elementType":"all","stylers":[{"visibility":"simplified"},{"hue":"#0066ff"},{"saturation":74},{"lightness":100}]},{"featureType":"poi","elementType":"all","stylers":[{"visibility":"simplified"}]},{"featureType":"road","elementType":"all","stylers":[{"visibility":"simplified"}]},{"featureType":"road.highway","elementType":"all","stylers":[{"visibility":"off"},{"weight":0.6},{"saturation":-85},{"lightness":61}]},{"featureType":"road.highway","elementType":"geometry","stylers":[{"visibility":"on"}]},{"featureType":"road.arterial","elementType":"all","stylers":[{"visibility":"off"}]},{"featureType":"road.local","elementType":"all","stylers":[{"visibility":"on"}]},{"featureType":"transit","elementType":"all","stylers":[{"visibility":"simplified"}]},{"featureType":"water","elementType":"all","stylers":[{"visibility":"simplified"},{"color":"#5f94ff"},{"lightness":26},{"gamma":5.86}]}]
  • Kenmerken

    Prijs
    € 1.495.000 k.k.
    Wijk
    Villapark
    Locatie
    Aan bosrand, Aan rustige weg, Beschutte ligging, In bosrijke omgeving
    Postcode
    8051 PA Hattem
    Woningtype
    Vrijstaande woning
    Bouwjaar
    1976
    Soort bouw
    Bestaande bouw
    Tuin
    Ja, Tuin rondom
    Balkon
    Ja
    Parkeren
    Garage, Inpandig, 28m²
    Kamers
    9
    Slaapkamers
    5
    Badkamers
    2
    Woonoppervlakte
    231m²
    Perceeloppervlakte
    4.650m²
    Inhoud
    1.078m³
    Oplevering
    In overleg
  • Plattegronden

  • Reageer

    Uw bericht is naar ons verzonden. Wij nemen zo snel mogelijk contact met ons op.

    Sorry, we kunnen helaas niet met zekerheid vaststellen of u een mens of een geautomatiseerde bot/spammer bent. Hierdoor kunnen we het formulier dat u heeft ingevuld niet verzenden. Probeer het opnieuw of neem direct contact op met de makelaar via e-mail.

    Er is iets mis gegaan met het versturen van het formulier.
    Controleer of u alle velden (goed) heeft ingevoerd en probeer het nog een keer.

    recaptcha
    reCAPTCHA
    PrivacyTerms
  • van

    Goedemiddag 👋

    Benieuwd naar de waarde van uw huis?

    U weet het al binnen 1 minuut. Laten we beginnen!

    Wat is de reden van uw aanvraag?
    Ik wil graag...

    Er zijn meerdere antwoorden mogelijk.

    Wanneer wilt u verhuizen?

    We zijn er bijna 🎉

    Om het rapport op te maken hebben we een aantal gegevens nodig

    recaptcha
    reCAPTCHA
    PrivacyTerms

    Uw woningwaarde wordt berekend... 🚀

    loading

    Bedankt %name%! De woningwaarde van %address% is berekend 🥳

    Check uw mail voor het rapport!

    success
    Wat is mijn huis waard?