De Haan Makelaars gebruikt cookies om de website naar behoren te laten werken, om functies voor social media te bieden en om onze website te analyseren. Op onze website kun je ons Cookiebeleid en Privacyverklaring vinden.

Struikstuk 48, Epe

Vraagprijs   € 665.000 k.k.  

  • Omschrijving

    Royale twee-onder-een-kapwoning met carport, berging en prachtige diepe tuin! (669 m²)

    Op een mooie, kindvriendelijke en rustige locatie in Epe bieden wij u aan deze zeer royale twee-onder-een-kapwoning met carport, berging en een bijzonder diepe achtertuin die grenst aan een royale groenstrook met wandelpaden. Hier geniet u van veel privacy, ruimte en natuur, terwijl scholen, winkels en openbaar vervoer zich op korte afstand bevinden.

    De woning is gebouwd in 1972, in 2016 aan de achterzijde uitgebouwd, grotendeels geïsoleerd en voorzien van kunststof kozijnen.

    Voor de uitgebreide informatie, kijk op: struikstuk48.nl

    Indeling begane grond
    Op de begane grond bevindt zich een overdekte entree, hal met meterkast en modern toilet. De zeer ruime woonkamer is verdeeld in een zitkamer, eetkamer en tv-kamer en beschikt over een sfeervolle houtkachel, een praktische kastenwand en openslaande deuren naar het terras aan de achterzijde. De open keuken heeft een moderne opstelling met diverse inbouwapparatuur, waaronder een inductiekookplaat, afzuigkap, vaatwasser, combimagnetron en Quooker. Aansluitend bevindt zich een ruime bijkeuken met kastenwand, aansluitingen voor wasapparatuur en een achteringang.

    Eerste verdieping
    Op de eerste verdieping bevinden zich drie ruime slaapkamers, waarvan één met toegang tot het dakterras aan de achterzijde. De moderne badkamer is voorzien van een wastafelmeubel, inloopdouche en tweede toilet.

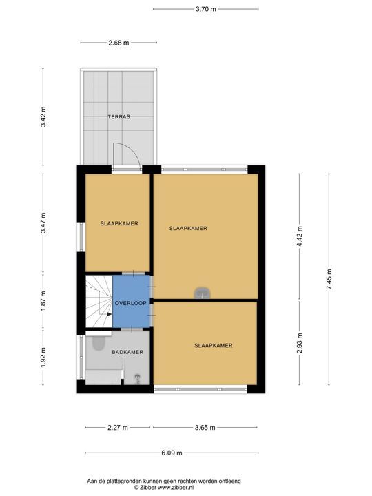
    Tweede verdieping
    De tweede verdieping biedt een overloop met bergruimte en twee ruime slaapkamers, beide met een kunststof dakkapel.

    Buitenleven
    De zeer diepe achtertuin van circa 30 meter is gelegen op het zuidwesten, biedt diverse terrassen en veel privacy. Hier woont u echt in het groen. Aan de voorzijde bevindt zich een royale oprit met ruimte voor meerdere auto’s. Tevens is er een royale houten berging met met carport.

    Zoekt u een ruime woning met veel leefruimte, een royale tuin en een prachtige ligging aan het groen? Dan is Struikstuk 48 in Epe absoluut een bezichtiging waard!

    Wetenswaardigheden
    Bouwjaar : 1972/2016
    Perceel : 669 m²
    Inhoud : 588 m³
    Gebruiksoppervlakte : 166 m²
    Externe bergruimte : 13,4 m²
    Verwarming : Remeha HR 2016 en houtkachel
    Warm water : Via combiketel
    Isolatie : Dak-, muur- en glasisolatie
    Energielabel : C
    Aanvaarding : In overleg

  • Locatie

    [ { "address": "Struikstuk 48", "zipCode": "8162 JN", "city": "Epe", "lat": 52.3457109, "lng": 5.9671609, "heading": 0, "pitch": 0 } ]
    [{"featureType":"administrative","elementType":"all","stylers":[{"visibility":"off"}]},{"featureType":"landscape","elementType":"all","stylers":[{"visibility":"simplified"},{"hue":"#0066ff"},{"saturation":74},{"lightness":100}]},{"featureType":"poi","elementType":"all","stylers":[{"visibility":"simplified"}]},{"featureType":"road","elementType":"all","stylers":[{"visibility":"simplified"}]},{"featureType":"road.highway","elementType":"all","stylers":[{"visibility":"off"},{"weight":0.6},{"saturation":-85},{"lightness":61}]},{"featureType":"road.highway","elementType":"geometry","stylers":[{"visibility":"on"}]},{"featureType":"road.arterial","elementType":"all","stylers":[{"visibility":"off"}]},{"featureType":"road.local","elementType":"all","stylers":[{"visibility":"on"}]},{"featureType":"transit","elementType":"all","stylers":[{"visibility":"simplified"}]},{"featureType":"water","elementType":"all","stylers":[{"visibility":"simplified"},{"color":"#5f94ff"},{"lightness":26},{"gamma":5.86}]}]
  • Kenmerken

    Prijs
    € 665.000 k.k.
    Inrichting
    Gestoffeerd
    Wijk
    Epe-Zuid
    Locatie
    Aan rustige weg, Beschutte ligging, In woonwijk
    Postcode
    8162 JN Epe
    Woningtype
    2-onder-1-kapwoning
    Bouwjaar
    1972
    Soort bouw
    Bestaande bouw
    Tuin
    Ja, Achtertuin, Zuidwest, 1300×3000cm
    Parkeren
    Garage, Carport
    Kamers
    6
    Slaapkamers
    5
    Badkamers
    1
    Woonoppervlakte
    166m²
    Perceeloppervlakte
    669m²
    Inhoud
    588m³
    Oplevering
    In overleg
  • Documenten

  • Plattegronden

  • Reageer

    Uw bericht is naar ons verzonden. Wij nemen zo snel mogelijk contact met ons op.

    Sorry, we kunnen helaas niet met zekerheid vaststellen of u een mens of een geautomatiseerde bot/spammer bent. Hierdoor kunnen we het formulier dat u heeft ingevuld niet verzenden. Probeer het opnieuw of neem direct contact op met de makelaar via e-mail.

    Er is iets mis gegaan met het versturen van het formulier.
    Controleer of u alle velden (goed) heeft ingevoerd en probeer het nog een keer.

    recaptcha
    reCAPTCHA
    PrivacyTerms
  • van

    Goedenavond 👋

    Benieuwd naar de waarde van uw huis?

    U weet het al binnen 1 minuut. Laten we beginnen!

    Wat is de reden van uw aanvraag?
    Ik wil graag...

    Er zijn meerdere antwoorden mogelijk.

    Wanneer wilt u verhuizen?

    We zijn er bijna 🎉

    Om het rapport op te maken hebben we een aantal gegevens nodig

    recaptcha
    reCAPTCHA
    PrivacyTerms

    Uw woningwaarde wordt berekend... 🚀

    loading

    Bedankt %name%! De woningwaarde van %address% is berekend 🥳

    Check uw mail voor het rapport!

    success
    Wat is mijn huis waard?