De Haan Makelaars gebruikt cookies om de website naar behoren te laten werken, om functies voor social media te bieden en om onze website te analyseren. Op onze website kun je ons Cookiebeleid en Privacyverklaring vinden.

Oude Wisselseweg 49, Epe

Vraagprijs   € 585.000 k.k.  

  • Omschrijving

    Karakteristieke levensloopbestendige tweekapper met royale tuin en bijgebouwen!

    Op korte afstand van het centrum van Epe mogen wij u deze sfeervolle en verrassend ruime levensloopbestendige twee-onder-een-kapwoning aanbieden. De woning is gelegen op een perceel van 520 m², beschikt over diverse bijgebouwen en combineert karakter met hedendaags wooncomfort.

    Voor de uitgebreide informatie, kijk op: oudewisselseweg49.nl

    De woning is oorspronkelijk gebouwd in 1928 en later aan de rechterzijde uitgebouwd. Hierdoor is er een royale woonkamer én een ruime slaapkamer met badkamer op de begane grond gerealiseerd. De woning is volledig geïsoleerd en voorzien van 16 zonnepanelen, wat zorgt voor comfortabel én energiezuinig wonen.

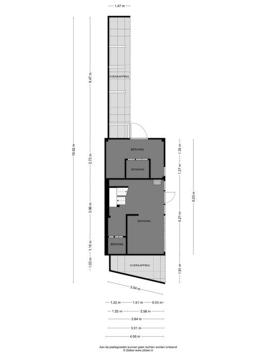
    Indeling begane grond
    Entree met hal en modern toilet. De royale en lichte woonkamer beschikt over een schuifpui naar de tuin, waardoor binnen en buiten naadloos in elkaar overlopen. Via een schuifdeur bereikt u de enorme woonkeuken met hoekopstelling voorzien van inbouwapparatuur, een gezellige kachel en een vaste bank met prachtig uitzicht op de tuin. Aansluitend bevindt zich een praktische bijkeuken met aansluitingen voor wasapparatuur.

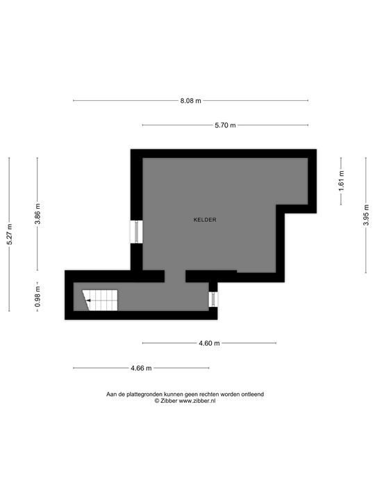
    Aan de voorzijde van de woning ligt een zeer ruime slaapkamer (voorheen woonkamer). Vanuit de hal is tevens de moderne badkamer bereikbaar, uitgerust met ligbad, douche en een dubbele wastafel. Onder de trap bevindt zich een handige kelderruimte.

    Eerste verdieping
    Overloop met toilet en inbouwkasten. Verder zijn hier drie slaapkamers gesitueerd.

    Bijgebouwen
    Aan de voorzijde bevindt zich een carport. Aan de achterzijde staat een royale schuur met diverse bijgebouwen en houtopslag, ideaal voor hobby, opslag of werkruimte.

    Buitenleven
    De fraaie, diepe tuin op het zuiden biedt volop privacy en is voorzien van een gezellige veranda. Een heerlijke plek om in alle rust te genieten van het buitenleven.

    Een charmante woning op een rustige locatie, met alle voorzieningen op de begane grond, een royale tuin en volop ruimte binnen én buiten. Hier woont u comfortabel, duurzaam en met veel privacy, terwijl alle voorzieningen van Epe binnen handbereik zijn. Een woning die u gezien moet hebben!

    Wetenswaardigheden
    Bouwjaar : 1928, 1988, 2008.
    Perceel : 520 m²
    Inhoud : 720 m³
    Gebruiksoppervlakte : 162 m²
    Externe bergruimte : 57 m²
    Inpandige ruimte : 41
    Verwarming : ATAG HR
    Warm water : Via boiler
    Isolatie : Dak-, glas, vloer- en gevelisolatie
    Energielabel : C
    Aanvaarding : in overleg

  • Locatie

    [ { "address": "Oude Wisselseweg 49", "zipCode": "8162 HJ", "city": "Epe", "lat": 52.3433372, "lng": 5.9734622, "heading": 0, "pitch": 0 } ]
    [{"featureType":"administrative","elementType":"all","stylers":[{"visibility":"off"}]},{"featureType":"landscape","elementType":"all","stylers":[{"visibility":"simplified"},{"hue":"#0066ff"},{"saturation":74},{"lightness":100}]},{"featureType":"poi","elementType":"all","stylers":[{"visibility":"simplified"}]},{"featureType":"road","elementType":"all","stylers":[{"visibility":"simplified"}]},{"featureType":"road.highway","elementType":"all","stylers":[{"visibility":"off"},{"weight":0.6},{"saturation":-85},{"lightness":61}]},{"featureType":"road.highway","elementType":"geometry","stylers":[{"visibility":"on"}]},{"featureType":"road.arterial","elementType":"all","stylers":[{"visibility":"off"}]},{"featureType":"road.local","elementType":"all","stylers":[{"visibility":"on"}]},{"featureType":"transit","elementType":"all","stylers":[{"visibility":"simplified"}]},{"featureType":"water","elementType":"all","stylers":[{"visibility":"simplified"},{"color":"#5f94ff"},{"lightness":26},{"gamma":5.86}]}]
  • Kenmerken

    Prijs
    € 585.000 k.k.
    Wijk
    Epe-Zuid
    Locatie
    Aan rustige weg, In woonwijk
    Postcode
    8162 HJ Epe
    Woningtype
    2-onder-1-kapwoning
    Bouwjaar
    1928
    Soort bouw
    Bestaande bouw
    Tuin
    Ja
    Parkeren
    Garage, Carport
    Kamers
    5
    Slaapkamers
    4
    Badkamers
    1
    Woonoppervlakte
    162m²
    Perceeloppervlakte
    520m²
    Inhoud
    720m³
    Oplevering
    In overleg
  • Documenten

  • Plattegronden

  • Reageer

    Uw bericht is naar ons verzonden. Wij nemen zo snel mogelijk contact met ons op.

    Sorry, we kunnen helaas niet met zekerheid vaststellen of u een mens of een geautomatiseerde bot/spammer bent. Hierdoor kunnen we het formulier dat u heeft ingevuld niet verzenden. Probeer het opnieuw of neem direct contact op met de makelaar via e-mail.

    Er is iets mis gegaan met het versturen van het formulier.
    Controleer of u alle velden (goed) heeft ingevoerd en probeer het nog een keer.

    recaptcha
    reCAPTCHA
    PrivacyTerms
  • van

    Goedenavond 👋

    Benieuwd naar de waarde van uw huis?

    U weet het al binnen 1 minuut. Laten we beginnen!

    Wat is de reden van uw aanvraag?
    Ik wil graag...

    Er zijn meerdere antwoorden mogelijk.

    Wanneer wilt u verhuizen?

    We zijn er bijna 🎉

    Om het rapport op te maken hebben we een aantal gegevens nodig

    recaptcha
    reCAPTCHA
    PrivacyTerms

    Uw woningwaarde wordt berekend... 🚀

    loading

    Bedankt %name%! De woningwaarde van %address% is berekend 🥳

    Check uw mail voor het rapport!

    success
    Wat is mijn huis waard?