De Haan Makelaars gebruikt cookies om de website naar behoren te laten werken, om functies voor social media te bieden en om onze website te analyseren. Op onze website kun je ons Cookiebeleid en Privacyverklaring vinden.

Oost Ravenweg 7, Epe

Vraagprijs   € 1.425.000 k.k.  

  • Omschrijving

    Wonen én genieten te midden van de Veluwse natuur! Welkom aan de Oost Ravenweg 7 te Epe!

    Op een magnifieke open plek, omringd door bossen, heidevelden en uitgestrekte landerijen, ligt deze stijlvolle uitgebouwde jaren ’30 villa met verwarmd zwembad, gastenverblijf en vier garages op een perceel van 4.610 m². Een unieke woonlocatie, waar rust en natuur de hoofdrol spelen. Voor liefhebbers van paardrijden is er bovendien op korte afstand een extra perceel weiland van 8.715 m² te koop met inloopstal, zodat u direct de prachtige Veluwe op kunt rijden.

    Achter de elektrische houten toegangspoort slingert een oprijlaan met rododendrons richting de villa met een woonoppervlakte van 247 m², een zonnige tuin met eigen bos en volledige privacy is dit een plek, waar elke dag voelt als vakantie. In de zomer geniet u aan het verwarmde zwembad of op het terras, terwijl de veranda met terrasverwarming op koelere avonden uitnodigt tot lange gesprekken en genieten van het uitzicht. In de winter biedt de open haard in de woonkamer of de houtkachel in de woonkeuken warmte en sfeer, waardoor het huis ieder seizoen een heerlijke plek is om te wonen.

    De villa is goed onderhouden en laat een harmonieuze combinatie zien van sfeer en comfort. Authentieke details zoals glas-in-lood, hoge plafonds, suite-deuren en een erker worden moeiteloos afgewisseld met modern wooncomfort. Er zijn twee werkkamers op de begane grond aanwezig, waardoor thuiswerken hier heel goed mogelijk is.

    De ligging is rustig en exclusief, maar toch centraal: binnen tien minuten bereikt u de A28 en A50. De bossen, heide en de Kroondomeinen liggen vrijwel in uw achtertuin en geliefde landgoederen zoals Tongeren en het Wisselse Veen bevinden zich in de directe omgeving. Niet voor niets wordt dit gezien als één van de mooiste plekken van Epe.

    Indeling begane grond
    Op de begane grond bevindt zich de entree met hal, toilet, meterkast en toegang tot de kelder. De woonkamer ensuite is voorzien van vaste kasten en een prachtige schouw met open haard en openslaande deuren naar de veranda. Beide ruimtes hebben hoge plafonds en een prachtige visgraatvloer. Vanuit de woonkamer is er toegang tot de werkkamer aan de voorzijde met erker. De ruime woonkeuken, welke is voorzien van royale opstelling en inbouwapparatuur, vloerverwarming en uitzicht op de fraai aangelegde tuin. Aangrenzend liggen de praktische bijkeuken en wasruimte, werk- of thans fitnessruimte en achterentree met berging. Het geheel is praktisch en ruim van opzet.

    Eerste verdieping
    De eerste verdieping telt drie slaapkamers en twee moderne badkamers. De mastersuite beschikt over een inloopkast, dakterras, bergzolder en een royale badkamer met dubbele wastafel, inloopdouche en toilet. De overige slaapkamers zijn eveneens ruim en licht, en delen een tweede moderne badkamer met toilet, wastafel en separate inloopdouche.

    Tweede verdieping
    De zolderverdieping is ingericht als riante slaapruimte met ingebouwd tweepersoonsbed, een inloopkast en een eigen wastafel en toilet.

    Buitenleven
    De tuin rondom de woning is groen, volgroeid en heerlijk zonnig. Een deel bestaat uit eigen bos, waardoor privacy en natuurrust optimaal zijn. Het verwarmde zwembad, aangestuurd door een energiezuinige warmtepomp, zorgt voor zwemcomfort van april tot ver in oktober. Terrassen rondom het zwembad en bij de veranda bieden volop plekken om te loungen, te dineren of te genieten van lange zomerdagen.

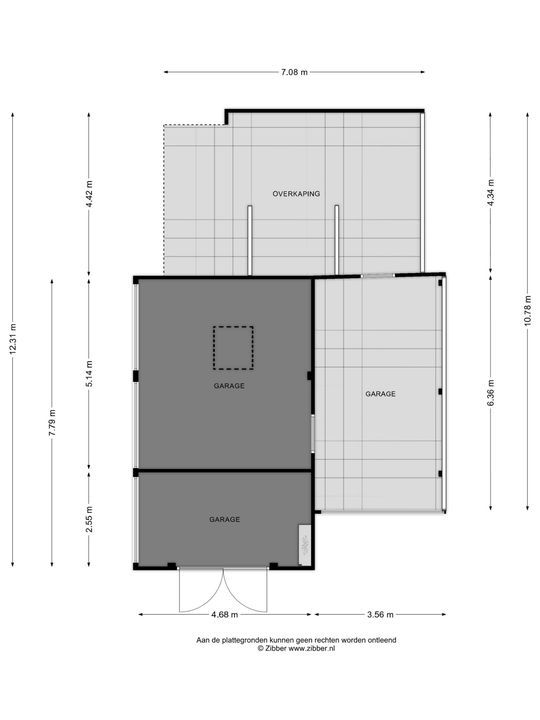
    Op het perceel bevindt zich tevens een volledig ingericht gastenverblijf van circa 25 m² met woonkamer, open keuken, slaap- en badkamer. Ideaal voor logee, maar multifunctioneel voor gebruik. Het overdekte terras, de extra berging en houtopslag maken het geheel compleet. De vrijstaande garage biedt plaats aan vier auto’s en beschikt aan de achterzijde over een royale overkapping, geschikt voor fietsen of extra opslagruimte.

    Extra weiland
    Het weiland van ca. 8.715 m² met inloopstal en paddock is gelegen op korte afstand aan de Ericaweg. Een unieke plek, waar u zo de prachtige Veluwe op kunt rijden. Ook is er op korte afstand een rijvereniging en manege. Dit weiland is eventueel extra te koop bij interesse!

    Samenvattend is dit een uitzonderlijk familiehuis op een droomlocatie, waar ruimte, rust en natuur samenkomen. Wilt u ervaren hoe bijzonder deze plek voelt? Wij nodigen u graag uit voor een bezichtiging!

    Wetenswaardigheden
    Bouwjaar : 1930/2002
    Perceel : 4.610 m²
    Inhoud : 1054 m³
    Gebruiksoppervlakte : 274 m³
    Externe bergruimte : 78 m²
    Verwarming : Via CV- ketel (Remeha HR 2020)
    Warm water : Via CV- ketel
    Isolatie : Dak, gedeeltelijk gevel- en glasisolatie
    Zonnepanelen : 51
    Energielabel : C
    Aanvaarding : in overleg

  • Locatie

    [ { "address": "Oost Ravenweg 7", "zipCode": "8162 PJ", "city": "Epe", "lat": 52.3457665, "lng": 5.9395349, "heading": 0, "pitch": 0 } ]
    [{"featureType":"administrative","elementType":"all","stylers":[{"visibility":"off"}]},{"featureType":"landscape","elementType":"all","stylers":[{"visibility":"simplified"},{"hue":"#0066ff"},{"saturation":74},{"lightness":100}]},{"featureType":"poi","elementType":"all","stylers":[{"visibility":"simplified"}]},{"featureType":"road","elementType":"all","stylers":[{"visibility":"simplified"}]},{"featureType":"road.highway","elementType":"all","stylers":[{"visibility":"off"},{"weight":0.6},{"saturation":-85},{"lightness":61}]},{"featureType":"road.highway","elementType":"geometry","stylers":[{"visibility":"on"}]},{"featureType":"road.arterial","elementType":"all","stylers":[{"visibility":"off"}]},{"featureType":"road.local","elementType":"all","stylers":[{"visibility":"on"}]},{"featureType":"transit","elementType":"all","stylers":[{"visibility":"simplified"}]},{"featureType":"water","elementType":"all","stylers":[{"visibility":"simplified"},{"color":"#5f94ff"},{"lightness":26},{"gamma":5.86}]}]
  • Kenmerken

    Prijs
    € 1.425.000 k.k.
    Wijk
    Verspreide huizen Wissel
    Locatie
    Aan bosrand, Aan rustige weg, Beschutte ligging, Buiten bebouwde kom, In bosrijke omgeving, Landelijk gelegen
    Postcode
    8162 PJ Epe
    Woningtype
    Vrijstaande woning
    Bouwjaar
    1930
    Soort bouw
    Bestaande bouw
    Tuin
    Ja, Tuin rondom
    Parkeren
    Garage, CarportVrijstaand steen, 64m²
    Kamers
    7
    Slaapkamers
    5
    Badkamers
    2
    Woonoppervlakte
    274m²
    Perceeloppervlakte
    4.610m²
    Inhoud
    1.054m³
    Oplevering
    In overleg
  • Documenten

  • Plattegronden

  • Reageer

    Uw bericht is naar ons verzonden. Wij nemen zo snel mogelijk contact met ons op.

    Sorry, we kunnen helaas niet met zekerheid vaststellen of u een mens of een geautomatiseerde bot/spammer bent. Hierdoor kunnen we het formulier dat u heeft ingevuld niet verzenden. Probeer het opnieuw of neem direct contact op met de makelaar via e-mail.

    Er is iets mis gegaan met het versturen van het formulier.
    Controleer of u alle velden (goed) heeft ingevoerd en probeer het nog een keer.

    recaptcha
    reCAPTCHA
    PrivacyTerms
  • van

    Goedemiddag 👋

    Benieuwd naar de waarde van uw huis?

    U weet het al binnen 1 minuut. Laten we beginnen!

    Wat is de reden van uw aanvraag?
    Ik wil graag...

    Er zijn meerdere antwoorden mogelijk.

    Wanneer wilt u verhuizen?

    We zijn er bijna 🎉

    Om het rapport op te maken hebben we een aantal gegevens nodig

    recaptcha
    reCAPTCHA
    PrivacyTerms

    Uw woningwaarde wordt berekend... 🚀

    loading

    Bedankt %name%! De woningwaarde van %address% is berekend 🥳

    Check uw mail voor het rapport!

    success
    Wat is mijn huis waard?