De Haan Makelaars gebruikt cookies om de website naar behoren te laten werken, om functies voor social media te bieden en om onze website te analyseren. Op onze website kun je ons Cookiebeleid en Privacyverklaring vinden.

Loper 17, Epe

Vraagprijs   € 549.000 k.k.  

  • Omschrijving

    Royale geschakelde levensloopbestendige woning met garage en zonnige tuin!

    Aan de Loper 17 in Epe bieden wij u een goed onderhouden en royale geschakelde levensloopbestendige woning aan, gelegen in de geliefde en groene woonwijk Het Hoge Land. Deze woning beschikt over een inpandige garage, een slaapkamer en badkamer op de begane grond én een fraai aangelegde tuin op het zuidoosten met volledige privacy.

    De woning ligt in een rustig en verkeersluw hofje, aan de rand van het dorpscentrum van Epe. Binnen enkele minuten loopt u tussen de weilanden richting de uitgestrekte bossen van de Veluwe. Een unieke locatie voor wie rust, natuur en gemak weet te waarderen. Scholen, winkels en andere voorzieningen zijn dichtbij gelegen, terwijl de uitvalswegen A28 en A50 uitstekend bereikbaar zijn binnen 5 tot 10 minuten rijden.

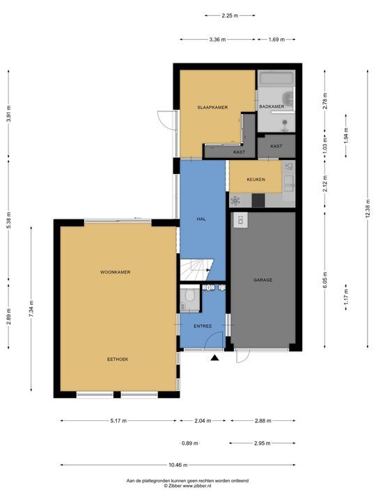
    Bij binnenkomst treft u een ruime hal met meterkast, toilet met fonteintje en toegang tot de inpandige garage met elektrische toegangsdeur. De royale woonkamer is heerlijk licht dankzij de grote raampartijen en de schuifpui naar de tuin. De plavuizenvloer zorgt voor een verzorgde en praktische afwerking. De open keuken in hoekopstelling is voorzien van diverse inbouwapparatuur en grenst aan een praktische bijkeuken met extra bergruimte.

    Aan de achterzijde van de woning bevindt zich de ruime slaapkamer met een vaste kastenwand en directe toegang tot de badkamer. Deze is voorzien van een ligbad, aparte douche, wastafel en designradiator. Dankzij deze indeling is comfortabel wonen op de begane grond mogelijk.

    Op de eerste verdieping zijn nog twee slaapkamers aanwezig, waarvan één met een dakraam. Daarnaast is er een zolderkamer met volop bergruimte, ideaal voor het opbergen van seizoensspullen of extra huisraad.

    De tuin is via zowel de schuifpui in de woonkamer als via de slaapkamer te bereiken en is gelegen op het zuidoosten. Hier geniet u de hele dag van de zon in alle rust en privacy. Een royaal terras maakt het tot een fijne plek om te ontspannen of gasten te ontvangen.

    De inpandige garage is voorzien van een elektrische- en een aparte loopdeur, en biedt daarmee ruimte voor zowel een auto als opslag of hobbyruimte. De woning is gebouwd in 1995, volledig geïsoleerd en gelegen op een perceel van 191 m².

    Bent u op zoek naar een levensloopbestendige woning in een rustige, groene en toch centraal gelegen woonwijk? Dan is Aan de Loper 17 in Epe absoluut een bezichtiging waard.

    Voor meer informatie en een uitgebreide impressie kijkt u op www.loper17.nl.

    Wetenswaardigheden
    Bouwjaar woning : 1995
    Perceel : 191 m²
    Inhoud : ca. 458 m³
    Gebruiksoppervlakte : ca. 112 m²
    Overige inpandige ruimte : ca. 25 m²
    Verwarming : CV-ketel, type , bouwjaar 2015
    Warm water : Via CV- ketel
    Isolatie : Volledig geïsoleerd
    Energielabel : C
    Overig : Platte dak is in 2026 vervangen
    Aanvaarding : in overleg

  • Locatie

    [ { "address": "Loper 17", "zipCode": "8162 KD", "city": "Epe", "lat": 52.3495557, "lng": 5.971218, "heading": 0, "pitch": 0 } ]
    [{"featureType":"administrative","elementType":"all","stylers":[{"visibility":"off"}]},{"featureType":"landscape","elementType":"all","stylers":[{"visibility":"simplified"},{"hue":"#0066ff"},{"saturation":74},{"lightness":100}]},{"featureType":"poi","elementType":"all","stylers":[{"visibility":"simplified"}]},{"featureType":"road","elementType":"all","stylers":[{"visibility":"simplified"}]},{"featureType":"road.highway","elementType":"all","stylers":[{"visibility":"off"},{"weight":0.6},{"saturation":-85},{"lightness":61}]},{"featureType":"road.highway","elementType":"geometry","stylers":[{"visibility":"on"}]},{"featureType":"road.arterial","elementType":"all","stylers":[{"visibility":"off"}]},{"featureType":"road.local","elementType":"all","stylers":[{"visibility":"on"}]},{"featureType":"transit","elementType":"all","stylers":[{"visibility":"simplified"}]},{"featureType":"water","elementType":"all","stylers":[{"visibility":"simplified"},{"color":"#5f94ff"},{"lightness":26},{"gamma":5.86}]}]
  • Kenmerken

    Prijs
    € 549.000 k.k.
    Inrichting
    Gestoffeerd
    Wijk
    Hogeland-Hoge Weerd
    Locatie
    Aan rustige weg
    Postcode
    8162 KD Epe
    Woningtype
    Geschakelde woning
    Bouwjaar
    1995
    Soort bouw
    Bestaande bouw
    Tuin
    Ja, Achtertuin, Zuidoost, 600×500cm
    Parkeren
    Garage, Inpandig, 18m²
    Kamers
    5
    Slaapkamers
    3
    Badkamers
    1
    Woonoppervlakte
    112m²
    Perceeloppervlakte
    191m²
    Inhoud
    458m³
    Oplevering
    In overleg
  • Documenten

  • Plattegronden

  • Reageer

    Uw bericht is naar ons verzonden. Wij nemen zo snel mogelijk contact met ons op.

    Sorry, we kunnen helaas niet met zekerheid vaststellen of u een mens of een geautomatiseerde bot/spammer bent. Hierdoor kunnen we het formulier dat u heeft ingevuld niet verzenden. Probeer het opnieuw of neem direct contact op met de makelaar via e-mail.

    Er is iets mis gegaan met het versturen van het formulier.
    Controleer of u alle velden (goed) heeft ingevoerd en probeer het nog een keer.

    recaptcha
    reCAPTCHA
    PrivacyTerms
  • van

    Goedenavond 👋

    Benieuwd naar de waarde van uw huis?

    U weet het al binnen 1 minuut. Laten we beginnen!

    Wat is de reden van uw aanvraag?
    Ik wil graag...

    Er zijn meerdere antwoorden mogelijk.

    Wanneer wilt u verhuizen?

    We zijn er bijna 🎉

    Om het rapport op te maken hebben we een aantal gegevens nodig

    recaptcha
    reCAPTCHA
    PrivacyTerms

    Uw woningwaarde wordt berekend... 🚀

    loading

    Bedankt %name%! De woningwaarde van %address% is berekend 🥳

    Check uw mail voor het rapport!

    success
    Wat is mijn huis waard?