De Haan Makelaars gebruikt cookies om de website naar behoren te laten werken, om functies voor social media te bieden en om onze website te analyseren. Op onze website kun je ons Cookiebeleid en Privacyverklaring vinden.

Klaverkamp 14, Epe

Vraagprijs   € 459.000 k.k.  

  • Omschrijving

    Op een rustige en geliefde locatie in de woonwijk Burgerenk in Epe staat deze royale hoekwoning met slaap- en badkamer op de begane grond. Een ideale woning voor wie gelijkvloers wil wonen, met daarnaast volop ruimte op de verdiepingen voor gezin, logees of hobby.

    De woning is gebouwd in 1970 en in 2009 aanzienlijk uitgebouwd. De woonkamer en keuken zijn aan de achterzijde met circa 3 meter vergroot en aan de zijkant is een royale slaap- en badkamer gerealiseerd. Dit zorgt voor verrassend veel leefruimte en optimaal wooncomfort.

    Voor uitgebreide informatie, kijk op: klaverkamp14.nl

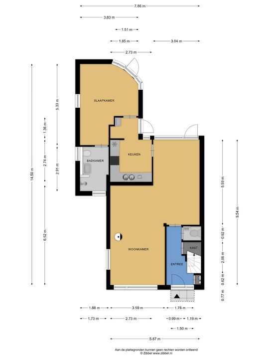
    Indeling begane grond:
    Entree, hal met modern toilet, trapopgang en vernieuwde meterkast. De royale en lichte woonkamer (ca. 37 m²) is voorzien van een fraaie pvc-vloer en een sfeervolle houtkachel. De halfopen keuken in hoekopstelling beschikt over diverse inbouwapparatuur. Aansluitend bevindt zich de praktische bijkeuken met achteringang.

    In de zij-uitbouw is een ruime slaapkamer met vaste kastenwand en een deur naar de tuin gerealiseerd. Aangrenzend vindt u de moderne badkamer met inloopdouche, wastafel en wandcloset.

    Eerste verdieping:
    Overloop, drie comfortabele slaapkamers en een gemoderniseerde badkamer met inloopdouche, wastafelmeubel en wandcloset.

    Tweede verdieping:
    Via een vaste trap bereikt u de zolderverdieping met berging (opstelling cv-ketel) en een royale kamer met dakkapel . Ideaal als extra slaapkamer, werkruimte of hobbykamer.

    Tuin:
    De keurig aangelegde, besloten tuin is gelegen op het noordwesten en biedt veel privacy en zon. Achterin de tuin staat een stenen berging en er is een praktische achterom.

    Kortom: een verrassend ruime en uitstekend onderhouden hoekwoning op een fijne locatie, met alle voorzieningen op de begane grond én volop extra ruimte op de verdiepingen.

    Wetenswaardigheden
    Bouwjaar : 1970/2009
    Perceel : 229 m²
    Inhoud : 469 m³
    Gebruiksoppervlakte : 132 m²
    Externe bergruimte : 7 m²
    Verwarming : Intergas Hr. 2009 en Nefit 2018
    Warm water : Via combiketel
    Isolatie : Dak-, muur- en isolatieglas. Uitbouw volledig geïsoleerd.
    Vloerverwarming : Aanbouw
    Zonnepanelen : 8
    Overige : Airco slaapkamer begane grond
    Energielabel : C
    Aanvaarding : in overleg

  • Locatie

    [ { "address": "Klaverkamp 14", "zipCode": "8162 HR", "city": "Epe", "lat": 52.3448328, "lng": 5.9737585, "heading": 0, "pitch": 0 } ]
    [{"featureType":"administrative","elementType":"all","stylers":[{"visibility":"off"}]},{"featureType":"landscape","elementType":"all","stylers":[{"visibility":"simplified"},{"hue":"#0066ff"},{"saturation":74},{"lightness":100}]},{"featureType":"poi","elementType":"all","stylers":[{"visibility":"simplified"}]},{"featureType":"road","elementType":"all","stylers":[{"visibility":"simplified"}]},{"featureType":"road.highway","elementType":"all","stylers":[{"visibility":"off"},{"weight":0.6},{"saturation":-85},{"lightness":61}]},{"featureType":"road.highway","elementType":"geometry","stylers":[{"visibility":"on"}]},{"featureType":"road.arterial","elementType":"all","stylers":[{"visibility":"off"}]},{"featureType":"road.local","elementType":"all","stylers":[{"visibility":"on"}]},{"featureType":"transit","elementType":"all","stylers":[{"visibility":"simplified"}]},{"featureType":"water","elementType":"all","stylers":[{"visibility":"simplified"},{"color":"#5f94ff"},{"lightness":26},{"gamma":5.86}]}]
  • Kenmerken

    Prijs
    € 459.000 k.k.
    Wijk
    Epe-Zuid
    Locatie
    Aan rustige weg, In woonwijk
    Postcode
    8162 HR Epe
    Woningtype
    Hoekwoning
    Bouwjaar
    1970
    Soort bouw
    Bestaande bouw
    Tuin
    Ja, Achtertuin, Noordwest, 750×1000cm
    Parkeren
    Openbaar parkeren
    Kamers
    6
    Slaapkamers
    5
    Badkamers
    2
    Woonoppervlakte
    132m²
    Perceeloppervlakte
    229m²
    Inhoud
    469m³
    Oplevering
    In overleg
  • Documenten

  • Plattegronden

  • Reageer

    Uw bericht is naar ons verzonden. Wij nemen zo snel mogelijk contact met ons op.

    Sorry, we kunnen helaas niet met zekerheid vaststellen of u een mens of een geautomatiseerde bot/spammer bent. Hierdoor kunnen we het formulier dat u heeft ingevuld niet verzenden. Probeer het opnieuw of neem direct contact op met de makelaar via e-mail.

    Er is iets mis gegaan met het versturen van het formulier.
    Controleer of u alle velden (goed) heeft ingevoerd en probeer het nog een keer.

    recaptcha
    reCAPTCHA
    PrivacyTerms
  • van

    Goedenavond 👋

    Benieuwd naar de waarde van uw huis?

    U weet het al binnen 1 minuut. Laten we beginnen!

    Wat is de reden van uw aanvraag?
    Ik wil graag...

    Er zijn meerdere antwoorden mogelijk.

    Wanneer wilt u verhuizen?

    We zijn er bijna 🎉

    Om het rapport op te maken hebben we een aantal gegevens nodig

    recaptcha
    reCAPTCHA
    PrivacyTerms

    Uw woningwaarde wordt berekend... 🚀

    loading

    Bedankt %name%! De woningwaarde van %address% is berekend 🥳

    Check uw mail voor het rapport!

    success
    Wat is mijn huis waard?