De Haan Makelaars gebruikt cookies om de website naar behoren te laten werken, om functies voor social media te bieden en om onze website te analyseren. Op onze website kun je ons Cookiebeleid en Privacyverklaring vinden.

Europalaan 43, Epe

Vraagprijs   € 675.000 k.k.  

  • Omschrijving

    Aan de rand van de bebouwde kom staat deze uitstekend onderhouden en royaal uitgebouwde twee-onder-een-kapwoning met carport en berging, gelegen op een perceel van maar liefst 494 m², waarvan 88 m² huurgrond.

    De woning, gebouwd in 1984 en volledig geïsoleerd, is na 2011 aanzienlijk vergroot met onder andere een riante woonkeuken, bijkeuken en extra berging. Dit heeft geresulteerd in een gebruiksoppervlakte van circa 175 m², met een verrassend ruimtelijk gevoel en een hoog afwerkingsniveau. Hier kunt u echt zo in.

    Voor de uitgebreide informatie, kijk op: europalaan43.nl

    De ligging is ideaal: rustig en toch dichtbij alle voorzieningen zoals winkels en scholen. Bovendien bevinden de uitgestrekte bossen en heidevelden van de Veluwe zich op slechts enkele minuten afstand.

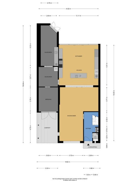
    Op de begane grond treft u een ruime hal met toilet en meterkast. De royale L-vormige woonkamer is voorzien van een fraaie eiken visgraatvloer en biedt via schuifdeuren toegang tot de woonkeuken van circa 38 m². Deze luxe keuken is uitgerust met een moderne opstelling, hoogwaardige inbouwapparatuur – waaronder een Boretti gascomfort met dubbele oven – en een royaal spoeleiland. Vanuit de keuken geven schuifpuien toegang tot de diepe achtertuin met prachtig uitzicht over de weilanden. Aan de zijkant bevindt zich een praktische berging met aansluitingen voor wasapparatuur, een bijkeuken met extra keukenopstelling en aan de voorzijde een fietsenberging met vaste kastenwand. De gehele uitbouw is voorzien van vloerverwarming en een elektrisch uitvalscherm.

    Op de eerste verdieping zijn drie ruime slaapkamers, waarvan de grootste met inbouwkasten, en een complete badkamer met inloopdouche, wastafelmeubel, toilet en ligbad.

    De tweede verdieping biedt een extra kamer, thans in gebruik als werkkamer, voorzien van inbouwkasten, twee dakramen en bergruimte met de opstelling van de cv-ketel.

    De tuin is zowel aan de voor- als achterzijde verzorgd aangelegd en biedt volop mogelijkheden om te genieten van het buitenleven. De diepe achtertuin beschikt over meerdere terrassen, twee houten bergingen en een prachtig weids uitzicht over de omliggende weilanden.

    Wetenswaardigheden
    Bouwjaar : 1984/2011
    Perceel : 406 m²
    Inhoud : 650 m³
    Gebruiksoppervlakte : 175 m²
    Externe bergruimte : 8 m²
    Verwarming : Intergas Hr. 2023
    Warm water : Via combiketel
    Vloerverwarming : Woonkeuken, berging en bijkeuken
    Isolatie : Volledig geïsoleerd
    Energielabel : C
    Aanvaarding : In overleg
    Overig : 88 m² huurgrond aan achterzijde

  • Locatie

    [ { "address": "Europalaan 43", "zipCode": "8161 ZB", "city": "Epe", "lat": 52.3393901, "lng": 5.9924755, "heading": 0, "pitch": 0 } ]
    [{"featureType":"administrative","elementType":"all","stylers":[{"visibility":"off"}]},{"featureType":"landscape","elementType":"all","stylers":[{"visibility":"simplified"},{"hue":"#0066ff"},{"saturation":74},{"lightness":100}]},{"featureType":"poi","elementType":"all","stylers":[{"visibility":"simplified"}]},{"featureType":"road","elementType":"all","stylers":[{"visibility":"simplified"}]},{"featureType":"road.highway","elementType":"all","stylers":[{"visibility":"off"},{"weight":0.6},{"saturation":-85},{"lightness":61}]},{"featureType":"road.highway","elementType":"geometry","stylers":[{"visibility":"on"}]},{"featureType":"road.arterial","elementType":"all","stylers":[{"visibility":"off"}]},{"featureType":"road.local","elementType":"all","stylers":[{"visibility":"on"}]},{"featureType":"transit","elementType":"all","stylers":[{"visibility":"simplified"}]},{"featureType":"water","elementType":"all","stylers":[{"visibility":"simplified"},{"color":"#5f94ff"},{"lightness":26},{"gamma":5.86}]}]
  • Kenmerken

    Prijs
    € 675.000 k.k.
    Wijk
    Epe-Zuid
    Locatie
    Aan rustige weg, In woonwijk, Vrij uitzicht
    Postcode
    8161 ZB Epe
    Woningtype
    2-onder-1-kapwoning
    Bouwjaar
    1984
    Soort bouw
    Bestaande bouw
    Tuin
    Ja, Achtertuin, Zuidoost, 900×3000cm
    Parkeren
    Garage, Carport
    Kamers
    5
    Slaapkamers
    4
    Badkamers
    1
    Woonoppervlakte
    175m²
    Perceeloppervlakte
    406m²
    Inhoud
    650m³
    Oplevering
    In overleg
  • Documenten

  • Plattegronden

  • Reageer

    Uw bericht is naar ons verzonden. Wij nemen zo snel mogelijk contact met ons op.

    Sorry, we kunnen helaas niet met zekerheid vaststellen of u een mens of een geautomatiseerde bot/spammer bent. Hierdoor kunnen we het formulier dat u heeft ingevuld niet verzenden. Probeer het opnieuw of neem direct contact op met de makelaar via e-mail.

    Er is iets mis gegaan met het versturen van het formulier.
    Controleer of u alle velden (goed) heeft ingevoerd en probeer het nog een keer.

    recaptcha
    reCAPTCHA
    PrivacyTerms
  • van

    Goedenavond 👋

    Benieuwd naar de waarde van uw huis?

    U weet het al binnen 1 minuut. Laten we beginnen!

    Wat is de reden van uw aanvraag?
    Ik wil graag...

    Er zijn meerdere antwoorden mogelijk.

    Wanneer wilt u verhuizen?

    We zijn er bijna 🎉

    Om het rapport op te maken hebben we een aantal gegevens nodig

    recaptcha
    reCAPTCHA
    PrivacyTerms

    Uw woningwaarde wordt berekend... 🚀

    loading

    Bedankt %name%! De woningwaarde van %address% is berekend 🥳

    Check uw mail voor het rapport!

    success
    Wat is mijn huis waard?