De Haan Makelaars gebruikt cookies om de website naar behoren te laten werken, om functies voor social media te bieden en om onze website te analyseren. Op onze website kun je ons Cookiebeleid en Privacyverklaring vinden.

Centrumweg 5 16, Epe

Vraagprijs   € 149.500 k.k.  

  • Omschrijving

    Te midden van het prachtige Veluwse landschap, verscholen tussen uitgestrekte bossen en heidevelden, ligt Bospark De Schaapskooi. Op dit geliefde, groene vakantiepark in Epe bieden wij u een fantastisch ‘nieuw’ vakantieplekje aan gelegen op een royaal perceel van 193 m2 eigen grond! De ideale uitvalsbasis voor rustzoekers, wandelaars, fietsers én natuurliefhebbers.

    Voor de uitgebreide informatie, kijk op: centrumweg5-16.nl

    Dit nieuwe chalet is gebouwd in 2025, volledig geïsoleerd en voldoet aan alle moderne eisen. Het is een comfortabele en energiezuinige vakantiewoning, waar u zorgeloos kunt genieten.

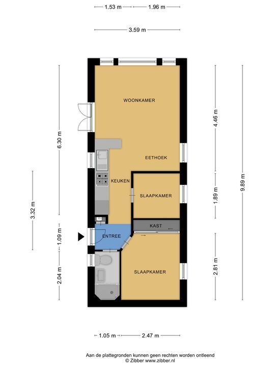
    Indeling chalet
    De royale woonkamer is sfeervol ingericht en beschikt over openslaande deuren die zorgen voor veel lichtinval en direct toegang geven tot de tuin. De keuken in hoekopstelling is netjes en voorzien van diverse inbouwapparatuur. Het chalet beschikt over twee slaapkamers, waarvan de grootste beschikt over een inbouwkast. De slaapkamers zijn geschikt voor zowel gezinnen als stellen. De moderne badkamer heeft een eigentijdse afwerking met toilet, wastafelmeubel en een ruime douche.

    Buitenleven
    De tuin rondom het chalet biedt volop ruimte om te ontspannen en te genieten van de buitenlucht. Een terras zorgt ervoor dat je op elk moment van de dag een fijn plekje in de zon of schaduw kunt vinden. Daarnaast is er een parkeerplaats op eigen terrein, wat het geheel zowel praktisch als aantrekkelijk maakt.

    Het park
    Het park biedt diverse recreatiemogelijkheden en faciliteiten (o.a. een overdekt zwembad, jeu-de-boule baan, tennisbaan, sport- en speelvelden en wasserette). Op het park kunt u in de supermarkt (minimarket) elke dag terecht voor verse broodjes en andere levensmiddelen. Heeft u geen zin om te koken, dan kunt u terecht bij het gezellige parkrestaurant of de snackbar.

    In de omgeving zijn er volop mogelijkheden voor wandel- en fietstochten door het bos en over de heide of langs kastelen en musea. Rustzoekers en natuurliefhebbers zijn hier - midden op de Veluwe - aan het juiste adres.

    Door de zeer fraaie ligging bereikt u binnen enkele minuten het centrum van het dorp Epe en de uitgestrekte Veluwse bossen en heide. Openbaar vervoer is op fietsafstand gelegen. Doordat het park centraal is gelegen bereikt u de steden Zwolle, Deventer en Apeldoorn in ca. 30 minuten autorijden.

    Extra informatie
    Het chalet wordt verkocht inclusief de gehele inboedel met uitzondering van persoonlijke spullen. Het chalet mag niet commercieel verhuurd worden, alleen aan vrienden en/of familie. De parkkosten bedragen in het jaar 2026 ca. €1.158,12,- en voor internetabonnement op het park via Ziggo betaalt u €309,- per jaar.

    Een zeer compleet vakantieplekje! Maak en afspraak en wees van harte welkom op Bospark de Schaapskooi!

    Wetenswaardigheden
    Bouwjaar : 2025
    Perceel : 193 m2
    Inhoud : 132 m3
    Woonoppervlakte : 36 m2
    Verwarming : via CV- ketel (2025)
    Warm water : via CV- ketel
    Isolatie : volledig geïsoleerd
    Aanvaarding : in overleg
    Overig : permanente bewoning is niet toegestaan

  • Locatie

    [ { "address": "Centrumweg 5", "zipCode": "8162 PT", "city": "Epe", "lat": 52.3449861, "lng": 5.9459602, "heading": 0, "pitch": 0 } ]
    [{"featureType":"administrative","elementType":"all","stylers":[{"visibility":"off"}]},{"featureType":"landscape","elementType":"all","stylers":[{"visibility":"simplified"},{"hue":"#0066ff"},{"saturation":74},{"lightness":100}]},{"featureType":"poi","elementType":"all","stylers":[{"visibility":"simplified"}]},{"featureType":"road","elementType":"all","stylers":[{"visibility":"simplified"}]},{"featureType":"road.highway","elementType":"all","stylers":[{"visibility":"off"},{"weight":0.6},{"saturation":-85},{"lightness":61}]},{"featureType":"road.highway","elementType":"geometry","stylers":[{"visibility":"on"}]},{"featureType":"road.arterial","elementType":"all","stylers":[{"visibility":"off"}]},{"featureType":"road.local","elementType":"all","stylers":[{"visibility":"on"}]},{"featureType":"transit","elementType":"all","stylers":[{"visibility":"simplified"}]},{"featureType":"water","elementType":"all","stylers":[{"visibility":"simplified"},{"color":"#5f94ff"},{"lightness":26},{"gamma":5.86}]}]
  • Kenmerken

    Prijs
    € 149.500 k.k.
    Inrichting
    Gemeubileerd, Gestoffeerd
    Wijk
    Verspreide huizen Wissel
    Locatie
    Aan bosrand, Aan park, Aan rustige weg, Beschutte ligging, Buiten bebouwde kom, In bosrijke omgeving
    Postcode
    8162 PT Epe
    Woningtype
    Vrijstaande woning
    Bouwjaar
    2025
    Soort bouw
    Bestaande bouw
    Tuin
    Ja, Tuin rondom
    Parkeren
    Op eigen terrein, Openbaar parkeren
    Kamers
    3
    Slaapkamers
    2
    Badkamers
    1
    Woonoppervlakte
    36m²
    Perceeloppervlakte
    193m²
    Inhoud
    132m³
    Oplevering
    In overleg
  • Documenten

  • Plattegronden

  • Reageer

    Uw bericht is naar ons verzonden. Wij nemen zo snel mogelijk contact met ons op.

    Sorry, we kunnen helaas niet met zekerheid vaststellen of u een mens of een geautomatiseerde bot/spammer bent. Hierdoor kunnen we het formulier dat u heeft ingevuld niet verzenden. Probeer het opnieuw of neem direct contact op met de makelaar via e-mail.

    Er is iets mis gegaan met het versturen van het formulier.
    Controleer of u alle velden (goed) heeft ingevoerd en probeer het nog een keer.

    recaptcha
    reCAPTCHA
    PrivacyTerms
  • van

    Goedenavond 👋

    Benieuwd naar de waarde van uw huis?

    U weet het al binnen 1 minuut. Laten we beginnen!

    Wat is de reden van uw aanvraag?
    Ik wil graag...

    Er zijn meerdere antwoorden mogelijk.

    Wanneer wilt u verhuizen?

    We zijn er bijna 🎉

    Om het rapport op te maken hebben we een aantal gegevens nodig

    recaptcha
    reCAPTCHA
    PrivacyTerms

    Uw woningwaarde wordt berekend... 🚀

    loading

    Bedankt %name%! De woningwaarde van %address% is berekend 🥳

    Check uw mail voor het rapport!

    success
    Wat is mijn huis waard?