De Haan Makelaars gebruikt cookies om de website naar behoren te laten werken, om functies voor social media te bieden en om onze website te analyseren. Op onze website kun je ons Cookiebeleid en Privacyverklaring vinden.

Centrumweg 5 15, Epe

Vraagprijs   € 159.000 k.k.  

  • Omschrijving

    Welkom bij deze fantastische recreatieplek op het prachtig gelegen park Bospark De Schaapskooi in Epe, midden op de Veluwe! Dit moderne instapklare chalet combineert luxe en gemak met een unieke ligging aan de rand van uitgestrekte natuurgebieden. Tevens beschikt het chalet over een fantastische veranda, een praktische berging en een eigen parkeerplaats.

    Gelegen in een groene, bosrijke omgeving biedt het chalet directe toegang tot schitterende wandel- en fietsroutes. Binnen enkele minuten staat u midden in natuurgebieden zoals Landgoed Tongeren of het Wisselse Veen. Of u nu houdt van lange wandelingen, wild spotten of simpelweg ontspannen in de natuur, deze plek biedt het allemaal!

    Voor de uitgebreide informatie, kijk op: centrumweg5-15.nl

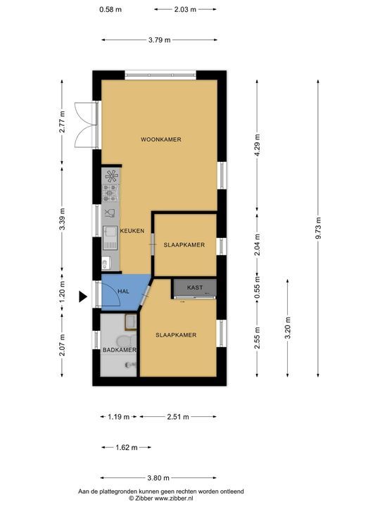
    Indeling chalet
    Het chalet is praktisch en comfortabel ingedeeld. Er zijn twee slaapkamers, waarvan één beschikt over een handige inbouwkast. De moderne badkamer is volledig ingericht en stijlvol afgewerkt. De ruime woonkamer biedt veel lichtinval en een aangename sfeer. De open keuken is uitgerust met diverse inbouwapparatuur en via de woonkamer bereikt u door openslaande deuren de veranda.

    Buitenleven
    Rondom het chalet ligt een ruime tuin waar u in alle rust kunt genieten van het buitenleven. De combinatie van een sfeervolle veranda en een terras aan de voorzijde maakt het mogelijk om op ieder moment van de dag maakt een fijne plek te vinden om van het buitenleven te genieten. Daarnaast beschikt het chalet over een praktische berging en een eigen parkeerplaats, wat bijdraagt aan het comfort en gebruiksgemak van deze fijne plek.

    Het park
    Het park biedt diverse recreatiemogelijkheden en faciliteiten (o.a. een overdekt zwembad, jeu-de-boule baan, tennisbaan, sport- en speelvelden en wasserette). Op het park kunt u in de supermarkt (minimarket) elke dag terecht voor verse broodjes en andere levensmiddelen. Heeft u geen zin om te koken, dan kunt u terecht bij het gezellige parkrestaurant of de snackbar.

    Extra informatie
    Het chalet mag niet commercieel verhuurd worden, alleen aan vrienden en/of familie. De parkkosten bedragen in het jaar 2026 ca. €1.158,12,- en voor internetabonnement op het park via Ziggo betaalt u €309,- per jaar.

    Enthousiast geworden van dit geweldige plekje? Wij nodigen u van harte uit voor een bezichtiging!

    Wetenswaardigheden
    Bouwjaar : 2023
    Perceel : 200 m2
    Inhoud : 130 m3
    Gebruiksoppervlakte : 37 m2
    Externe bergruimte : 6 m2
    Verwarming : Via CV- ketel (EcoTech HR 2023)
    Warm water : Via CV- ketel
    Isolatie : Volledig geïsoleerd
    Aanvaarding : in overleg/ kan snel
    Overig : permanente bewoning is niet toegestaan

  • Locatie

    [ { "address": "Centrumweg 5", "zipCode": "8162 PT", "city": "Epe", "lat": 52.3447985, "lng": 5.9458545, "heading": 0, "pitch": 0 } ]
    [{"featureType":"administrative","elementType":"all","stylers":[{"visibility":"off"}]},{"featureType":"landscape","elementType":"all","stylers":[{"visibility":"simplified"},{"hue":"#0066ff"},{"saturation":74},{"lightness":100}]},{"featureType":"poi","elementType":"all","stylers":[{"visibility":"simplified"}]},{"featureType":"road","elementType":"all","stylers":[{"visibility":"simplified"}]},{"featureType":"road.highway","elementType":"all","stylers":[{"visibility":"off"},{"weight":0.6},{"saturation":-85},{"lightness":61}]},{"featureType":"road.highway","elementType":"geometry","stylers":[{"visibility":"on"}]},{"featureType":"road.arterial","elementType":"all","stylers":[{"visibility":"off"}]},{"featureType":"road.local","elementType":"all","stylers":[{"visibility":"on"}]},{"featureType":"transit","elementType":"all","stylers":[{"visibility":"simplified"}]},{"featureType":"water","elementType":"all","stylers":[{"visibility":"simplified"},{"color":"#5f94ff"},{"lightness":26},{"gamma":5.86}]}]
  • Kenmerken

    Prijs
    € 159.000 k.k.
    Inrichting
    Gestoffeerd
    Wijk
    Verspreide huizen Wissel
    Locatie
    Aan bosrand, Aan rustige weg, Buiten bebouwde kom, In bosrijke omgeving
    Postcode
    8162 PT Epe
    Woningtype
    Vrijstaande woning
    Bouwjaar
    2023
    Soort bouw
    Bestaande bouw
    Tuin
    Ja, Tuin rondom
    Parkeren
    Op afgesloten terrein, Op eigen terrein
    Kamers
    3
    Slaapkamers
    2
    Badkamers
    1
    Woonoppervlakte
    37m²
    Perceeloppervlakte
    200m²
    Inhoud
    130m³
    Oplevering
    In overleg
  • Documenten

  • Plattegronden

  • Reageer

    Uw bericht is naar ons verzonden. Wij nemen zo snel mogelijk contact met ons op.

    Sorry, we kunnen helaas niet met zekerheid vaststellen of u een mens of een geautomatiseerde bot/spammer bent. Hierdoor kunnen we het formulier dat u heeft ingevuld niet verzenden. Probeer het opnieuw of neem direct contact op met de makelaar via e-mail.

    Er is iets mis gegaan met het versturen van het formulier.
    Controleer of u alle velden (goed) heeft ingevoerd en probeer het nog een keer.

    recaptcha
    reCAPTCHA
    PrivacyTerms
  • van

    Goedenavond 👋

    Benieuwd naar de waarde van uw huis?

    U weet het al binnen 1 minuut. Laten we beginnen!

    Wat is de reden van uw aanvraag?
    Ik wil graag...

    Er zijn meerdere antwoorden mogelijk.

    Wanneer wilt u verhuizen?

    We zijn er bijna 🎉

    Om het rapport op te maken hebben we een aantal gegevens nodig

    recaptcha
    reCAPTCHA
    PrivacyTerms

    Uw woningwaarde wordt berekend... 🚀

    loading

    Bedankt %name%! De woningwaarde van %address% is berekend 🥳

    Check uw mail voor het rapport!

    success
    Wat is mijn huis waard?