De Haan Makelaars gebruikt cookies om de website naar behoren te laten werken, om functies voor social media te bieden en om onze website te analyseren. Op onze website kun je ons Cookiebeleid en Privacyverklaring vinden.

Bertha von Suttnerweg 24, Epe

Vraagprijs   € 415.000 k.k.  

  • Omschrijving

    Welkom aan de Bertha von Suttnerweg 24 te Epe!

    Ben je op zoek naar een fijne gezinswoning op een groene en kindvriendelijke locatie? Dan is deze leuke eindwoning in de woonwijk de Vegtelarij zeker een bezichtiging waard. De woning beschikt over een eigen parkeerplaats, een aangebouwde stenen berging en een fijne achtertuin op het westen. Dankzij de ligging aan een groenstrook ervaar je hier van veel privacy. Aan de voorzijde bevindt zich bovendien een speelveld, ideaal voor kinderen.

    De woning is gebouwd in 1978 en staat op een perceel van 131 m². Is voorzien van dubbel glas, vloerisolatie en muurisolatie, en heeft energielabel C.

    De Vegtelarij is een geliefde, rustige en groene woonwijk aan de rand van het centrum van Epe. In de directe omgeving vind je diverse winkels, restaurants, scholen, sportvoorzieningen en natuurlijk de prachtige Veluwse bossen. De dichtstbijzijnde uitvalsweg is binnen enkele minuten bereikbaar.

    Voor meer informatie kijk op: berthavonsuttnerweg24.nl

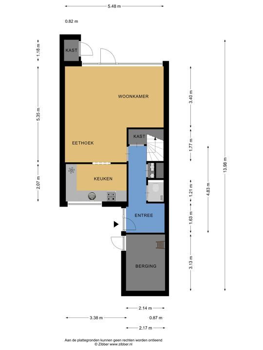
    Indeling

    Begane grond:
    Entree met ruime hal, modern toilet met fonteintje (2024) en een praktische voorraadkast. De keuken, in hoekopstelling, bevindt zich aan de voorzijde van de woning en kijkt uit over het speelveld. De tuingerichte woonkamer heeft veel lichtinval, een nette laminaatvloer en keurig afgewerkte wanden en plafonds. Via de deur aan de achterzijde is de tuin bereikbaar.

    Eerste verdieping:
    Overloop met drie ruime slaapkamers, waarvan één met een royale kastenwand. De badkamer (2015) is netjes afgewerkt en voorzien van een inloopdouche, wastafelmeubel en toilet.

    Tweede verdieping:
    Via een vaste trap bereik je de ruime zolderverdieping met aansluitingen voor de wasapparatuur en de CV-ketel. Hier is eenvoudig een vierde slaapkamer te realiseren.

    Tuin
    De achtertuin is gelegen op het westen en is verzorgd aangelegd met een ruim terras, groot zonnescherm en een achterom. Dankzij de ligging aan een groenstrook biedt de tuin veel privacy.

    Kortom, zoek je een leuke en goed onderhouden gezinswoning in een kindvriendelijke woonwijk? Wacht dan niet te lang en plan snel een bezichtiging. Dit is een kans die je niet wilt missen!

    Wetenswaardigheden:
    Bouwjaar : 1978
    Perceel : 131 m²
    Inhoud : 411 m³
    Gebruiksoppervlakte : 102 m²
    Verwarming : CV-ketel, type Intergas HR, bouwjaar 2010
    Warm water : Via CV-ketel
    Isolatie : Dubbelglas, bodemisolatie en muurisolatie
    Energielabel : C
    Aanvaarding : In overleg

  • Locatie

    [ { "address": "Bertha von Suttnerweg 24", "zipCode": "8161 DK", "city": "Epe", "lat": 52.3403493, "lng": 5.9855984, "heading": 0, "pitch": 0 } ]
    [{"featureType":"administrative","elementType":"all","stylers":[{"visibility":"off"}]},{"featureType":"landscape","elementType":"all","stylers":[{"visibility":"simplified"},{"hue":"#0066ff"},{"saturation":74},{"lightness":100}]},{"featureType":"poi","elementType":"all","stylers":[{"visibility":"simplified"}]},{"featureType":"road","elementType":"all","stylers":[{"visibility":"simplified"}]},{"featureType":"road.highway","elementType":"all","stylers":[{"visibility":"off"},{"weight":0.6},{"saturation":-85},{"lightness":61}]},{"featureType":"road.highway","elementType":"geometry","stylers":[{"visibility":"on"}]},{"featureType":"road.arterial","elementType":"all","stylers":[{"visibility":"off"}]},{"featureType":"road.local","elementType":"all","stylers":[{"visibility":"on"}]},{"featureType":"transit","elementType":"all","stylers":[{"visibility":"simplified"}]},{"featureType":"water","elementType":"all","stylers":[{"visibility":"simplified"},{"color":"#5f94ff"},{"lightness":26},{"gamma":5.86}]}]
  • Kenmerken

    Prijs
    € 415.000 k.k.
    Inrichting
    Gestoffeerd
    Wijk
    Epe-Zuid
    Locatie
    Aan rustige weg, In woonwijk
    Postcode
    8161 DK Epe
    Woningtype
    Eindwoning
    Bouwjaar
    1978
    Soort bouw
    Bestaande bouw
    Tuin
    Ja, Achtertuin, West, 500×800cm
    Parkeren
    Op eigen terrein, Openbaar parkeren
    Kamers
    5
    Slaapkamers
    4
    Badkamers
    1
    Woonoppervlakte
    102m²
    Perceeloppervlakte
    131m²
    Inhoud
    411m³
    Oplevering
    In overleg
  • Documenten

  • Plattegronden

  • Reageer

    Uw bericht is naar ons verzonden. Wij nemen zo snel mogelijk contact met ons op.

    Sorry, we kunnen helaas niet met zekerheid vaststellen of u een mens of een geautomatiseerde bot/spammer bent. Hierdoor kunnen we het formulier dat u heeft ingevuld niet verzenden. Probeer het opnieuw of neem direct contact op met de makelaar via e-mail.

    Er is iets mis gegaan met het versturen van het formulier.
    Controleer of u alle velden (goed) heeft ingevoerd en probeer het nog een keer.

    recaptcha
    reCAPTCHA
    PrivacyTerms
  • van

    Goedenavond 👋

    Benieuwd naar de waarde van uw huis?

    U weet het al binnen 1 minuut. Laten we beginnen!

    Wat is de reden van uw aanvraag?
    Ik wil graag...

    Er zijn meerdere antwoorden mogelijk.

    Wanneer wilt u verhuizen?

    We zijn er bijna 🎉

    Om het rapport op te maken hebben we een aantal gegevens nodig

    recaptcha
    reCAPTCHA
    PrivacyTerms

    Uw woningwaarde wordt berekend... 🚀

    loading

    Bedankt %name%! De woningwaarde van %address% is berekend 🥳

    Check uw mail voor het rapport!

    success
    Wat is mijn huis waard?