De Haan Makelaars gebruikt cookies om de website naar behoren te laten werken, om functies voor social media te bieden en om onze website te analyseren. Op onze website kun je ons Cookiebeleid en Privacyverklaring vinden.

Abraham Kuyperstraat 3, Epe

Vraagprijs   € 419.000 k.k.  

  • Omschrijving

    Ontdek deze unieke kans in de kindvriendelijke woonwijk “De Vegtelarij”!

    In de geliefde woonwijk “De Vegtelarij” staat deze goed onderhouden en energiezuinige gezinswoning. De woning is gebouwd in 1981 en is fraai afgewerkt, beschikt over vier slaapkamers, grotendeels kunststof kozijnen, energielabel A, 9 zonnepanelen en airconditioning. Met een diepe tuin op het oosten, een praktische bijkeuken en een fijne overkapping is dit een woning waar comfort, ruimte en woonplezier perfect samenkomen.

    Voor de uitgebreide informatie, kijk op: abrahamkuyperstraat3.nl

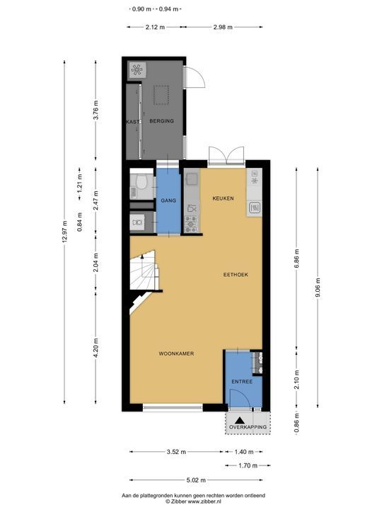
    Indeling begane grond
    Via de entree komt u in de hal met meterkast. De royale woonkamer vormt het hart van de woning en is sfeervol ingericht met een mooie visgraatvloer, een gashaard en airconditioning, wat zorgt voor comfort in elk seizoen. De aangrenzende keuken is modern en praktisch ingericht en voorzien van diverse inbouwapparatuur. Dankzij de openslaande deuren staat de keuken in directe verbinding met de tuin, wat zorgt voor veel licht en een prettige binnen-buitenbeleving.

    Naast de keuken bevindt zich een gang met een toiletruimte en een aparte wasruimte. Een groot pluspunt is de praktische bijkeuken met een vaste kastenwand, ideaal voor extra bergruimte en het netjes organiseren van huishoudelijke zaken.

    Eerste verdieping
    Op de eerste verdieping bevinden zich drie slaapkamers, allen netjes afgewerkt en geschikt voor diverse woonwensen, zoals slapen, werken of hobby’s. Eén van de slaapkamer is nu in gebruik als kleedkamer. De nette badkamer is functioneel ingericht en voorzien van de gebruikelijke sanitaire voorzieningen.

    Tweede verdieping/zolder
    De tweede verdieping biedt verrassend veel ruimte. Mede dankzij de dakkapel is hier een ruime vierde slaapkamer gerealiseerd met veel lichtinval. Daarnaast beschikt deze verdieping over twee separate bergingen, ideaal voor opslag en het netjes uit het zicht houden van spullen.

    Buitenleven
    Wat een heerlijk huis! De verzorgde en diepe tuin biedt volop ruimte om te ontspannen en te genieten. De tuin is praktisch en sfeervol ingericht met diverse terrassen, waardoor u op elk moment van de dag een fijne plek in de zon of schaduw kunt vinden. Verder beschikt de tuin over een kunststof berging, een achterom en een heerlijke overkapping waar u tot in de late uurtjes comfortabel buiten kunt zitten. De woning is bovendien grotendeels voorzien van rolluiken, wat bijdraagt aan extra comfort, privacy en isolatie.

    Locatie
    De woning is gelegen in de populaire en groene wijk ‘de Vegtelarij’, die bekend staat om zijn diversiteit aan woningtypes, hofjes en de ruime hoeveelheid groen- en speelvoorzieningen. De wijk is bijzonder kindvriendelijk, ideaal voor gezinnen die op zoek zijn naar een veilige en rustige woonomgeving. Toch ben je binnen enkele minuten in het levendige dorpscentrum van Epe, waar je terecht kunt voor alle dagelijkse voorzieningen, winkels en gezelligheid. De uitvalswegen naar omliggende steden zijn uitstekend bereikbaar, waardoor je ook snel in bijvoorbeeld Zwolle of Apeldoorn bent!

    Heeft u belangstelling of wilt u deze woning van binnen bekijken? Maak gebruik van deze unieke kans en neem contact met ons op voor het plannen van een bezichtiging.

    Wetenswaardigheden
    Bouwjaar : 1981
    Perceel : 158 m²
    Inhoud : 397 m³
    Gebruiksoppervlakte : 112 m²
    Externe bergruimte : 6 m²
    Verwarming : Via CV- ketel (Remeha HR 2013)
    Warm water : Via CV- ketel
    Isolatie : Dak, gedeeltelijke vloerisolatie, glasisolatie en muurisolatie
    Energielabel : A
    Aanvaarding : in overleg

  • Locatie

    [ { "address": "Abraham Kuyperstraat 3", "zipCode": "8161 DW", "city": "Epe", "lat": 52.3396481, "lng": 5.9887859, "heading": 0, "pitch": 0 } ]
    [{"featureType":"administrative","elementType":"all","stylers":[{"visibility":"off"}]},{"featureType":"landscape","elementType":"all","stylers":[{"visibility":"simplified"},{"hue":"#0066ff"},{"saturation":74},{"lightness":100}]},{"featureType":"poi","elementType":"all","stylers":[{"visibility":"simplified"}]},{"featureType":"road","elementType":"all","stylers":[{"visibility":"simplified"}]},{"featureType":"road.highway","elementType":"all","stylers":[{"visibility":"off"},{"weight":0.6},{"saturation":-85},{"lightness":61}]},{"featureType":"road.highway","elementType":"geometry","stylers":[{"visibility":"on"}]},{"featureType":"road.arterial","elementType":"all","stylers":[{"visibility":"off"}]},{"featureType":"road.local","elementType":"all","stylers":[{"visibility":"on"}]},{"featureType":"transit","elementType":"all","stylers":[{"visibility":"simplified"}]},{"featureType":"water","elementType":"all","stylers":[{"visibility":"simplified"},{"color":"#5f94ff"},{"lightness":26},{"gamma":5.86}]}]
  • Kenmerken

    Prijs
    € 419.000 k.k.
    Inrichting
    Gestoffeerd
    Wijk
    Epe-Zuid
    Locatie
    Aan rustige weg, In woonwijk
    Postcode
    8161 DW Epe
    Woningtype
    Tussenwoning
    Bouwjaar
    1981
    Soort bouw
    Bestaande bouw
    Tuin
    Ja
    Parkeren
    Openbaar parkeren
    Kamers
    5
    Slaapkamers
    4
    Badkamers
    1
    Woonoppervlakte
    112m²
    Perceeloppervlakte
    158m²
    Inhoud
    397m³
    Oplevering
    In overleg
  • Documenten

  • Plattegronden

  • Reageer

    Uw bericht is naar ons verzonden. Wij nemen zo snel mogelijk contact met ons op.

    Sorry, we kunnen helaas niet met zekerheid vaststellen of u een mens of een geautomatiseerde bot/spammer bent. Hierdoor kunnen we het formulier dat u heeft ingevuld niet verzenden. Probeer het opnieuw of neem direct contact op met de makelaar via e-mail.

    Er is iets mis gegaan met het versturen van het formulier.
    Controleer of u alle velden (goed) heeft ingevoerd en probeer het nog een keer.

    recaptcha
    reCAPTCHA
    PrivacyTerms
  • van

    Goedenavond 👋

    Benieuwd naar de waarde van uw huis?

    U weet het al binnen 1 minuut. Laten we beginnen!

    Wat is de reden van uw aanvraag?
    Ik wil graag...

    Er zijn meerdere antwoorden mogelijk.

    Wanneer wilt u verhuizen?

    We zijn er bijna 🎉

    Om het rapport op te maken hebben we een aantal gegevens nodig

    recaptcha
    reCAPTCHA
    PrivacyTerms

    Uw woningwaarde wordt berekend... 🚀

    loading

    Bedankt %name%! De woningwaarde van %address% is berekend 🥳

    Check uw mail voor het rapport!

    success
    Wat is mijn huis waard?