De Haan Makelaars gebruikt cookies om de website naar behoren te laten werken, om functies voor social media te bieden en om onze website te analyseren. Op onze website kun je ons Cookiebeleid en Privacyverklaring vinden.

Pollenseweg 16, Emst

Vraagprijs   € 155.000 k.k.  

  • Omschrijving

    Recreatiebungalow op een unieke locatie verscholen in de bossen!

    Op een werkelijk prachtige locatie, aan de rand van de Veluwse bossen en nabij het uitgestrekte Kroondomein, staat deze recreatiebungalow met berging op een royaal perceel van maar liefst 2.197 m² (erfpachtgrond). Een plek waar rust, natuur en ruimte samenkomen en waar u optimaal kunt genieten van alles wat de Veluwe te bieden heeft.

    Voor de uitgebreide informatie, kijk op: pollenseweg16.nl

    De recreatiebungalow is gebouwd in 1965 en verkeert nog in originele staat. Dit biedt een uitstekende kans voor kopers die hun eigen recreatieverblijf geheel naar wens willen moderniseren of vernieuwen.

    Indeling recreatiewoning:
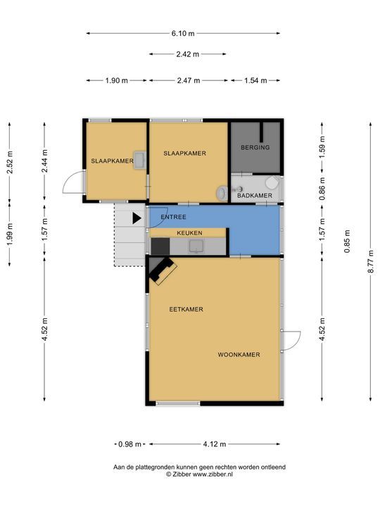
    De recreatiebungalow heeft een praktische indeling. Via de entree komt u direct in de keuken, waar zich een keukenblok en de opstelling van de geiser bevinden. Aan de linkerzijde van de keuken zijn de slaapkamers gesitueerd. Wanneer u verder doorloopt, treft u aan de linkerzijde de badkamer met aansluitend de berging. Aan de rechterzijde bevindt zich de royale woonkamer, voorzien van openslaande deuren naar het zijterras, waardoor binnen en buiten mooi in elkaar overlopen. In de woonkamer is tevens een gaskachel aanwezig.

    Locatie:
    De ligging is zonder meer bijzonder te noemen. Direct grenzend aan de Veluwse natuur en nabij het Kroondomein, het grootste aaneengesloten landgoed van Nederland. Dit gebied staat bekend om zijn rijke cultuurhistorie, grote biologische diversiteit en indrukwekkende landschappen. Hier ervaart u stilte, natuur en weidsheid in een grootschalig en harmonieus landschap. Voor meer informatie verwijzen wij u naar de website van het Kroondomein.

    Voor kopers die mogelijkheden zien voor vernieuwd recreatief gebruik adviseren wij het geldende bestemmingsplan te raadplegen via de website. Kortom, een unieke kans voor liefhebbers van natuur, rust en ruimte die hun eigen recreatieplek op een toplocatie willen realiseren!

    Wetenswaardigheden
    Bouwjaar : 1965
    Perceel : 2.197 m²
    Erfprachtscanon : € 3.276,17,- per jaar
    Inhoud : 145 m³
    Gebruiksoppervlakte : 41 m²
    Externe bergruimte : 12 m²
    Verwarming : via gaskachels
    Warm water : via geiser
    Isolatie : geen isolatie waargenomen
    Aanvaarding : in overleg

  • Locatie

    [ { "address": "Pollenseweg 16", "zipCode": "8166 HL", "city": "Emst", "lat": 52.3261331, "lng": 5.9441871, "heading": 0, "pitch": 0 } ]
    [{"featureType":"administrative","elementType":"all","stylers":[{"visibility":"off"}]},{"featureType":"landscape","elementType":"all","stylers":[{"visibility":"simplified"},{"hue":"#0066ff"},{"saturation":74},{"lightness":100}]},{"featureType":"poi","elementType":"all","stylers":[{"visibility":"simplified"}]},{"featureType":"road","elementType":"all","stylers":[{"visibility":"simplified"}]},{"featureType":"road.highway","elementType":"all","stylers":[{"visibility":"off"},{"weight":0.6},{"saturation":-85},{"lightness":61}]},{"featureType":"road.highway","elementType":"geometry","stylers":[{"visibility":"on"}]},{"featureType":"road.arterial","elementType":"all","stylers":[{"visibility":"off"}]},{"featureType":"road.local","elementType":"all","stylers":[{"visibility":"on"}]},{"featureType":"transit","elementType":"all","stylers":[{"visibility":"simplified"}]},{"featureType":"water","elementType":"all","stylers":[{"visibility":"simplified"},{"color":"#5f94ff"},{"lightness":26},{"gamma":5.86}]}]
  • Kenmerken

    Prijs
    € 155.000 k.k.
    Inrichting
    Gestoffeerd
    Wijk
    Verspreide huizen Emst
    Locatie
    Aan bosrand, Aan rustige weg, Beschutte ligging, Buiten bebouwde kom, In bosrijke omgeving
    Postcode
    8166 HL Emst
    Woningtype
    Vrijstaande woning
    Bouwjaar
    1965
    Soort bouw
    Bestaande bouw
    Tuin
    Ja, Tuin rondom
    Parkeren
    Op eigen terrein
    Kamers
    3
    Slaapkamers
    2
    Badkamers
    1
    Woonoppervlakte
    41m²
    Perceeloppervlakte
    2.197m²
    Inhoud
    145m³
    Oplevering
    In overleg
  • Documenten

  • Plattegronden

  • Reageer

    Uw bericht is naar ons verzonden. Wij nemen zo snel mogelijk contact met ons op.

    Sorry, we kunnen helaas niet met zekerheid vaststellen of u een mens of een geautomatiseerde bot/spammer bent. Hierdoor kunnen we het formulier dat u heeft ingevuld niet verzenden. Probeer het opnieuw of neem direct contact op met de makelaar via e-mail.

    Er is iets mis gegaan met het versturen van het formulier.
    Controleer of u alle velden (goed) heeft ingevoerd en probeer het nog een keer.

    recaptcha
    reCAPTCHA
    PrivacyTerms
  • van

    Goedenavond 👋

    Benieuwd naar de waarde van uw huis?

    U weet het al binnen 1 minuut. Laten we beginnen!

    Wat is de reden van uw aanvraag?
    Ik wil graag...

    Er zijn meerdere antwoorden mogelijk.

    Wanneer wilt u verhuizen?

    We zijn er bijna 🎉

    Om het rapport op te maken hebben we een aantal gegevens nodig

    recaptcha
    reCAPTCHA
    PrivacyTerms

    Uw woningwaarde wordt berekend... 🚀

    loading

    Bedankt %name%! De woningwaarde van %address% is berekend 🥳

    Check uw mail voor het rapport!

    success
    Wat is mijn huis waard?